Duplex c2 modern de vanzare, 151,64 mp, in Faget
Oferta accesata nu mai este disponibilă.
Poți vedea oferte din aceeași categorie sau poți contacta agentul pentru o oferta personalizată.
VEZI OFERTE SIMILARE
Casă Premium în Mănăştur, zona Campului | Tehnologie Germană, Finisaje High-End

Exclusivitate ! Duplex modern,finisat, 160 mp utili, 178 mp teren, Borhanci !
Linkuri rapide filtrate după cele mai căutate zone și numărul de camere
ID: BLITZ 90939CV
Cartier: Dambul RotundPreț/mp: 2.346 €
Actualizat: 10.05.2024
Zona: Dambul RotundRata lunară: 2.519,90 €
Anunță-mă când scade prețul
Trimite oferta de preț
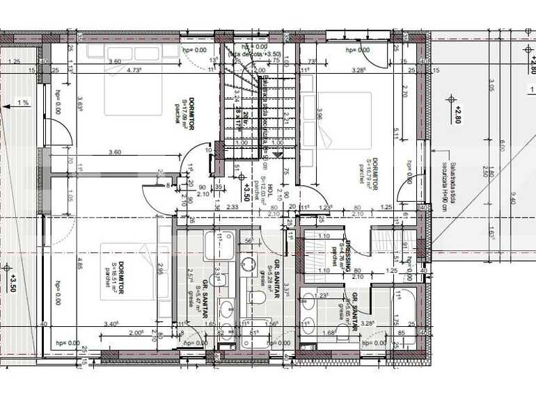
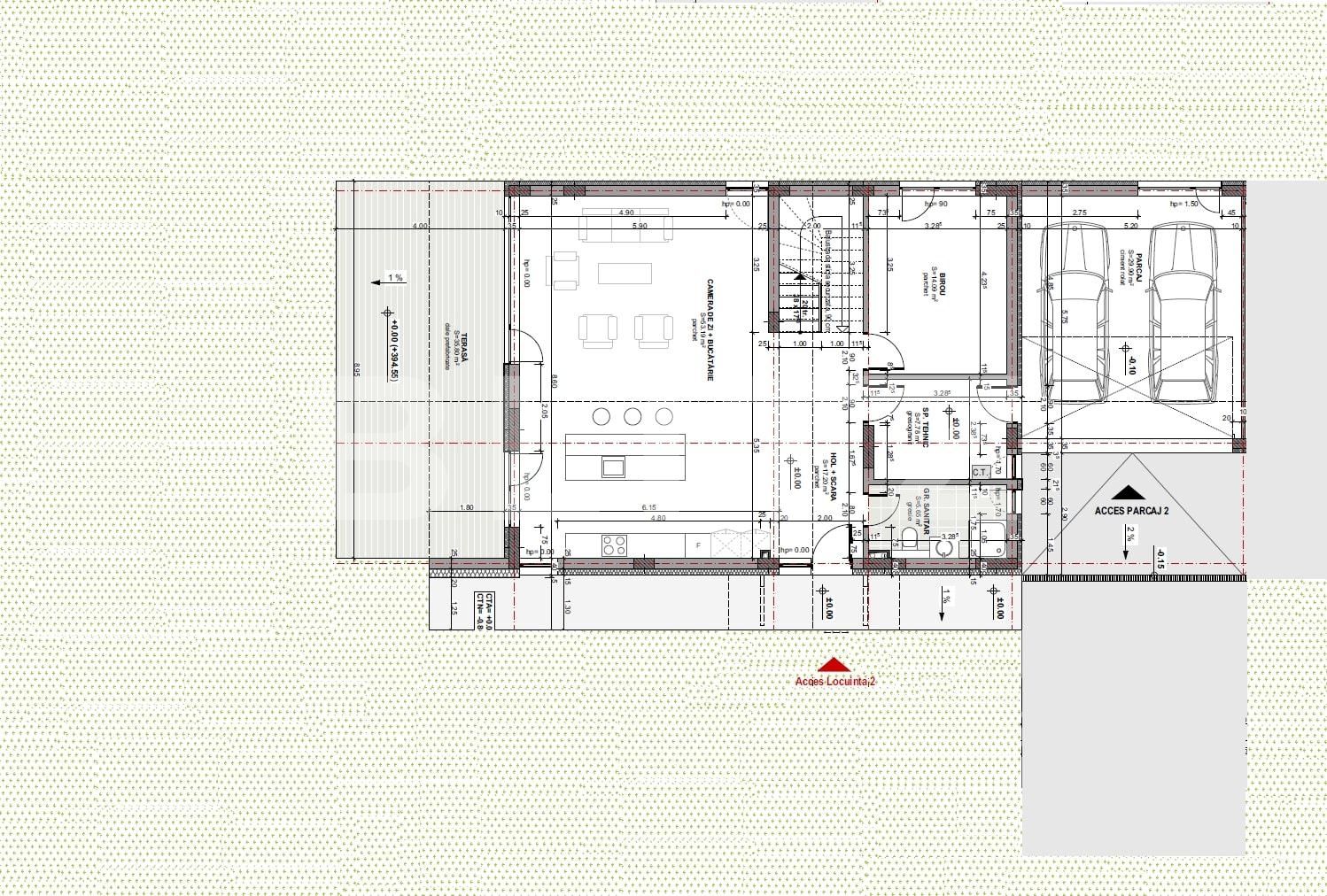
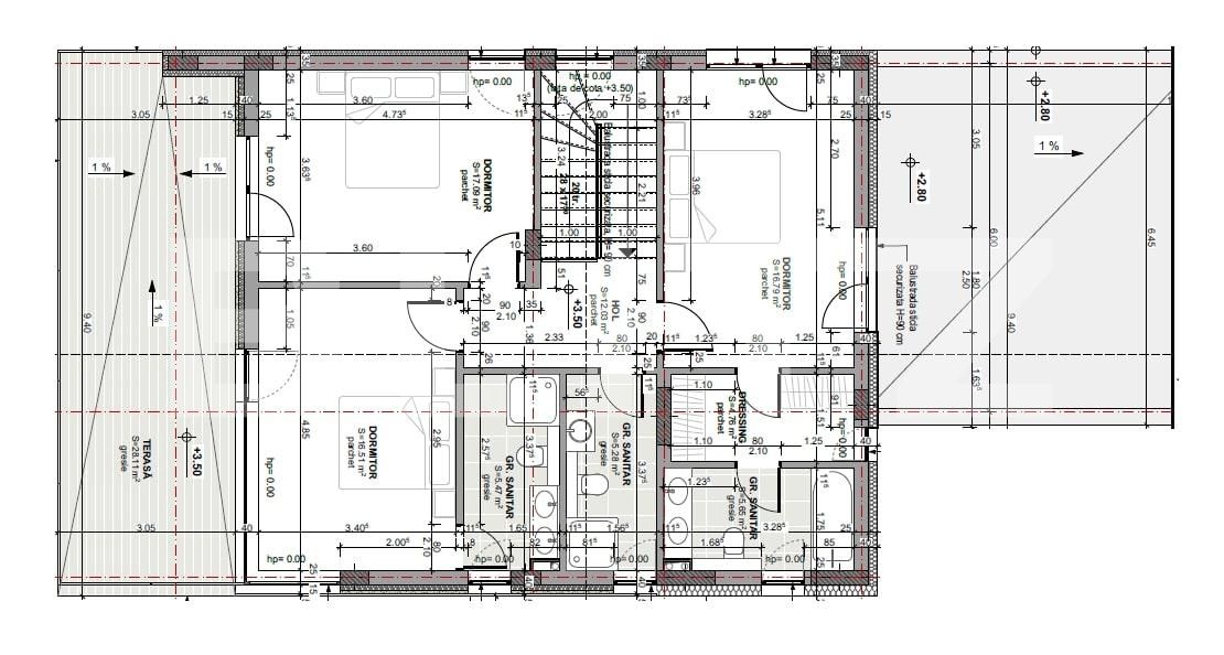
Suprafață casă: 211 mp
Teren: 400 mp
Număr de camere: 5
Nr. bucătării: 1
Nr. băi: 4
Niveluri: Parter, Etaj 1
Locuri de parcare: 1
Vechime casă: Nouă
Destinație: De locuit
Dotări: Nemobilat
Tip finisaj: Semifinisat
Materiale construcție: Beton, Cărămidă
Tip acoperiș: Terasă
Modalitate vânzare: Credit bancar, Cash
An construcție: 2022
Link-uri utile
Linkuri rapide filtrate după cele mai căutate zone și numărul de camere