Proprietate specială în Borhanci cu 280mp teren și panoramă!
Anunță-mă când scade prețul
Trimite oferta de preț
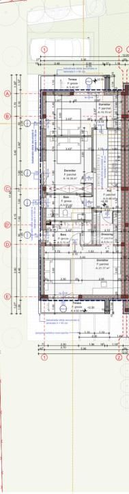
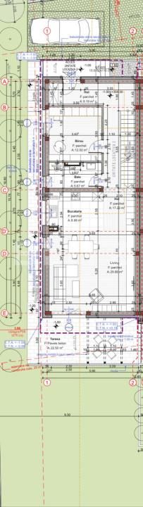
Suprafață casă: 158 mp
Teren: 400 mp
Număr de camere: 5
Nr. bucătării: 1
Nr. băi: 3
Nr. balcoane: 1
Locuri de parcare: 2
Vechime casă: Nouă
Dotări: Nemobilat
Tip finisaj: Semifinisat
Tip acoperiș: Terasă
An construcție: 2025
Evoluție Indice Blitz:
BLITZ EXCLUSIV Casă modernă în Sălicea, liniște si intimitate la 10min de Cluj
Casă individuala moderna, 5 camere, 800mp teren, panoramă spectaculoasă,Feleacu
Link-uri utile
Linkuri rapide filtrate după cele mai căutate zone și numărul de camere

