blitz logo
favorites

black arrow right Oferta accesata nu mai este disponibilă.

Poți vedea oferte din aceeași categorie sau poți contacta agentul pentru o oferta personalizată.

VEZI OFERTE SIMILARE

LINK-URI UTILE

Linkuri rapide filtrate după cele mai căutate zone și numărul de camere

Apartamente de vânzareApartamente de vânzare GirocApartamente de vânzare 2 camereApartamente de vânzare Giroc 2 camere
Apartament de vânzare 2 camere Giroc - 173625AV | BLITZ Timișoara | Poza1
Apartament de vânzare 2 camere Giroc - 173625AV | BLITZ Timișoara | Poza1
Apartament de vânzare 2 camere Giroc - 173625AV | BLITZ Timișoara | Poza1

Apartament de 2 camere, 44 mp, Giroc

ID: BLITZ 173625AV

Cartier: Giroc

Preț/mp: 1.657 €

Actualizat: 22.07.2025

Rata lunară: 371,62

Agent

Gheorghe Maniu

Broker Partner

Te interesează ofertă? Programează o vizionare!
Vă rugăm să completați chenarul cu informațiile cerute pentru a continua

73.000

Trimite ofertă de preț

Acest anunț este verificat de către agent

  €

Nr. camere: 2

Suprafață utilă: 44.05 mp

Nr. băi: 1

Etaj: 2 /3

Locuri de parcare: 1

Tip compartimentare: Semidecomandat

Vechime apartament: În construcție

Tip imobil: Bloc de apartamente

Dotări: Nemobilat

Anul construcției: 2025

Tip finisaj: Finisat

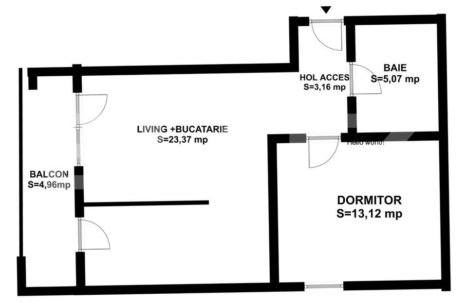
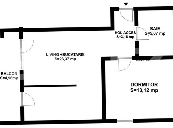
Blitz va propune spre vanzare un apartament cu 2 camere aflat intr-un ansamblu rezidential din zona Giroc, cu acces facil și aproape de punctele de interes. Apartamentul este situat la etajul 2 al unui imobil in regim de 3 etaje. Apartamentul este realizat folosind materiale de calitate. Acesta este compartimentat astfel: hol, 1 dormitor, si living spatios, bucataria inchisa, 1 baie. Acesta se vinde nemobilat si neutilat. Detine incalzire in pardoseala, centrala proprie pe gaz, clima, finisaje si obiecte sanitare de inalta calitate. De asemenea, apartamentul dispune gratuit și de o parcare exterioară. Termen de finalizare Ianuarie 2026. Nu ma crede pe cuvant te invit la vizionare.
Cod ofertă / ID BLITZ: P148652

Agent

Gheorghe Maniu

Broker Partner

Link-uri utile

Linkuri rapide filtrate după cele mai căutate zone și numărul de camere

black friday
Sună acum
Inchide
X

Te interesează apartamente de vânzare în Timișoara?

Lasă-ne datele tale de contact şi te vom consilia în alegerea proprietăţii potrivite!

Inchide
X

Te interesează apartamente de vânzare în Timișoara?

Lasă-ne datele tale de contact şi te vom consilia în alegerea proprietăţii potrivite!