blitz logo
favorites
Teren de vânzare Central - 185721TV | BLITZ Suceava | Poza1
Teren de vânzare Central - 185721TV | BLITZ Suceava | Poza1
Teren de vânzare Central - 185721TV | BLITZ Suceava | Poza1

Teren parcelabil P+2 în Zamca, 400 euro/mp

ID: BLITZ 185721TV

Cartier: Central

Preț/mp: 400 €

Actualizat: 30.04.2026

Agent

Mihai Serenec

Specialist Broker Partner

Te interesează ofertă? Programează o vizionare!
Vă rugăm să completați chenarul cu informațiile cerute pentru a continua

760.000

Trimite ofertă de preț

Acest anunț este verificat de către agent

  €

Suprafață: 1900 mp

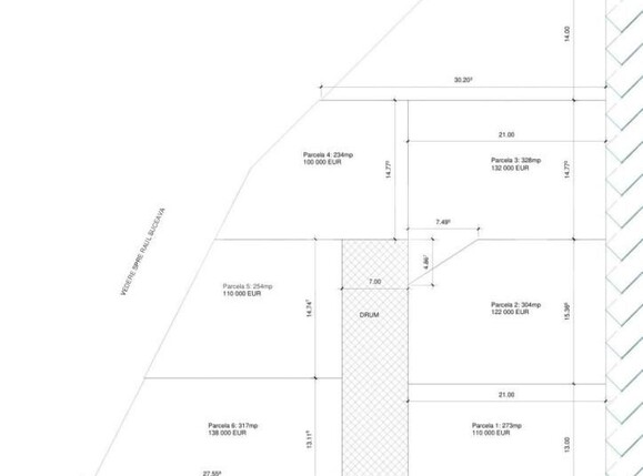
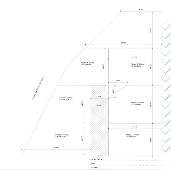
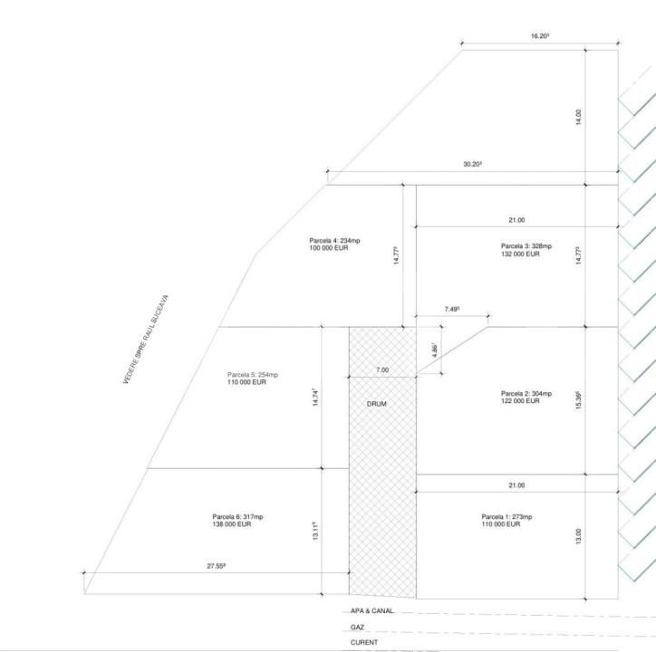
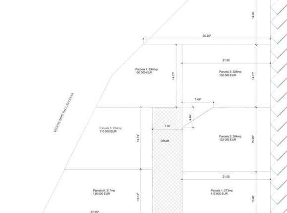
Blitz Imobiliare îți oferă un teren versatil în cartierul Zamca, Suceava, ideal pentru construcții rezidențiale. Poți construi aici atât locuințe individuale de tip P+2, cât și locuințe colective cu același regim de înălțime, oferind flexibilitate maximă.

Terenul este în prezent neparcelat, dar avem un plan cadastral care permite configurarea loturilor după cum urmează: 234 mp la 100.000 euro, 328 mp la 132.000 euro, 304 mp la 122.000 euro, 373 mp la 110.000 euro, 317 mp la 138.000 euro și 254 mp la 110.000 euro.

Toate parcelele au utilitățile la front și sunt situate într-o zonă excelentă a Zamcăi. Te așteptăm să alegi varianta care ți se potrivește cel mai bine!
Cod ofertă / ID BLITZ: P161946

Agent

Mihai Serenec

Specialist Broker Partner

Evoluție Indice Blitz:

  • Cartier: Central

Link-uri utile

Linkuri rapide filtrate după cele mai căutate zone și numărul de camere

black friday
Sună acum
Inchide
X

Te interesează terenuri de vânzare în Suceava?

Lasă-ne datele tale de contact şi te vom consilia în alegerea proprietăţii potrivite!

Inchide
X

Te interesează terenuri de vânzare în Suceava?

Lasă-ne datele tale de contact şi te vom consilia în alegerea proprietăţii potrivite!