blitz logo
favorites

black arrow right Oferta accesata nu mai este disponibilă.

Poți vedea oferte din aceeași categorie sau poți contacta agentul pentru o oferta personalizată.

VEZI OFERTE SIMILARE

LINK-URI UTILE

Linkuri rapide filtrate după cele mai căutate zone și numărul de camere

Terenuri de vânzareTerenuri de vânzare Burdujeni
Teren de vânzare Burdujeni - 143874TV | BLITZ Suceava | Poza1
Teren de vânzare Burdujeni - 143874TV | BLITZ Suceava | Poza2
Teren de vânzare Burdujeni - 143874TV | BLITZ Suceava | Poza1
Teren de vânzare Burdujeni - 143874TV | BLITZ Suceava | Poza2
Teren de vânzare Burdujeni - 143874TV | BLITZ Suceava | Poza1
Teren de vânzare Burdujeni - 143874TV | BLITZ Suceava | Poza2

Teren multifunctional, pretabil hala industriala

ID: BLITZ 143874TV

Cartier: Burdujeni

Preț/mp: 38.406 €

Actualizat: 29.12.2024

Agent

    Te interesează ofertă? Programează o vizionare!
    Vă rugăm să completați chenarul cu informațiile cerute pentru a continua

    800.000

    Trimite ofertă de preț

    Acest anunț este verificat de către agent

      €

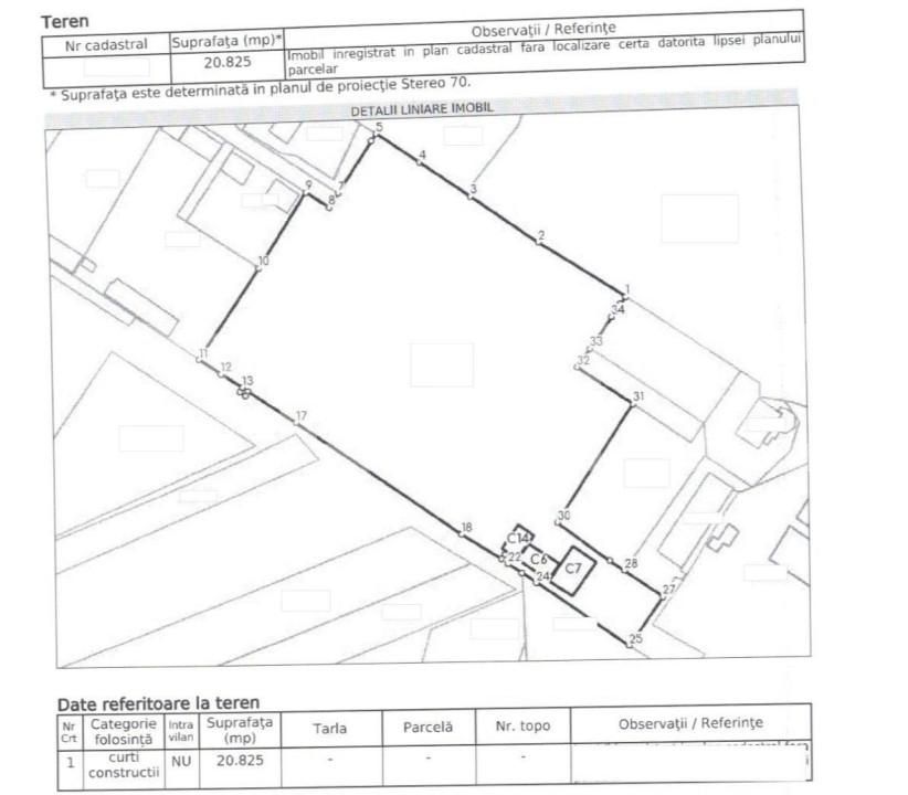
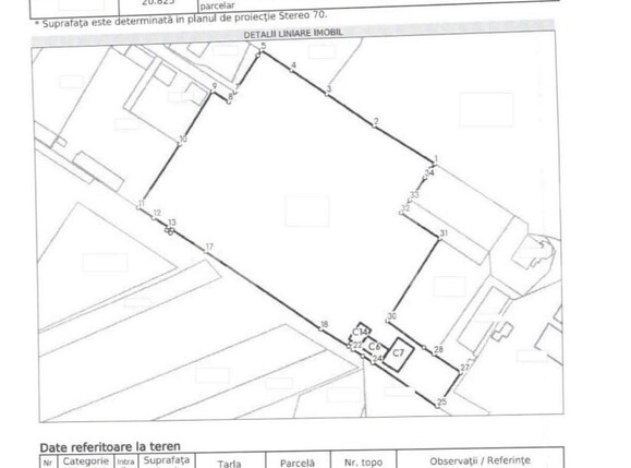
    Suprafață: 20.83 mp

    Front: Sub 15 ml

    Blitz va prezinta spre vanzare un teren extravilan de 20.825 mp din zona industrială a Sucevei , ce impresionează prin dimensiunile sale generoase și utilitatea sa în contextul economic și industrial. Caracteristicile sale esențiale includ o platformă betonata si o hala deja costruita, elemente ce conferă terenului un avantaj semnificativ pentru diverse activități industriale și comerciale.

    Platforma betonată, cu o suprafață adecvată, reprezintă un spațiu stabil și funcțional, ideal pentru construcții, depozitare sau desfășurarea de activități industriale. Acest aspect sporește versatilitatea terenului și îl face potrivit pentru întreprinderi ce necesită o bază solidă pentru operațiunile lor.

    Amplasat în zona industrială a Sucevei, terenul beneficiază de avantaje logistice și accesibilitate sporită pentru transportul de mărfuri și materiale. Acest fapt contribuie la facilitarea proceselor de distribuție și desfășurare a afacerilor într-un mediu propice dezvoltării industriale.

    Cu o suprafață generoasă de peste 20.000 mp, terenul oferă posibilități ample de extindere și dezvoltare, fiind adaptabil la cerințele specifice ale investitorilor din diverse domenii. Zona industrială în care este situat promovează sinergia între diverse afaceri și creează o infrastructură favorabilă pentru creșterea economică și prosperitatea comunității locale.

    Va asteptam la vizionare !

    Cod ofertă / ID BLITZ: P101096

    Agent

    Link-uri utile

    Linkuri rapide filtrate după cele mai căutate zone și numărul de camere

    black friday
    Sună acum
    Inchide
    X

    Te interesează terenuri de vânzare în Suceava?

    Lasă-ne datele tale de contact şi te vom consilia în alegerea proprietăţii potrivite!

    Inchide
    X

    Te interesează terenuri de vânzare în Suceava?

    Lasă-ne datele tale de contact şi te vom consilia în alegerea proprietăţii potrivite!