Casa off-grid 5 camere Sangatin
Oferta accesata nu mai este disponibilă.
Poți vedea oferte din aceeași categorie sau poți contacta agentul pentru o oferta personalizată.
VEZI OFERTE SIMILARELinkuri rapide filtrate după cele mai căutate zone și numărul de camere
Anunță-mă când scade prețul
Trimite oferta de preț
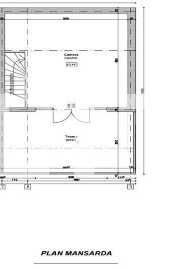
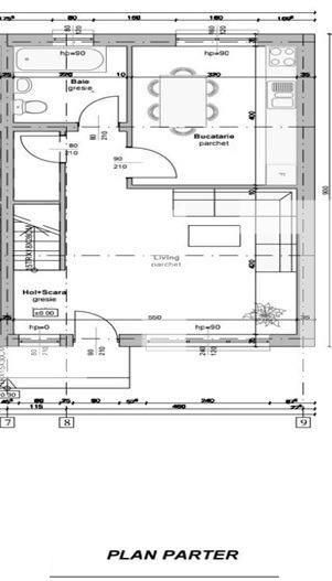
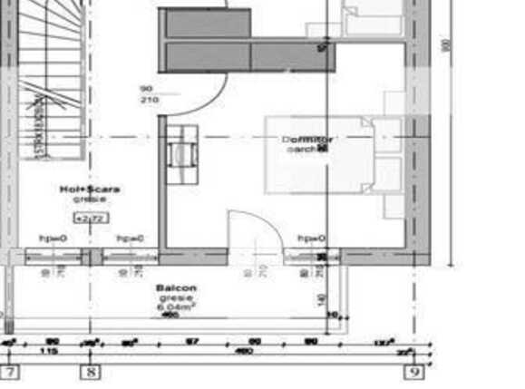
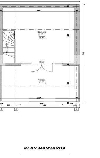
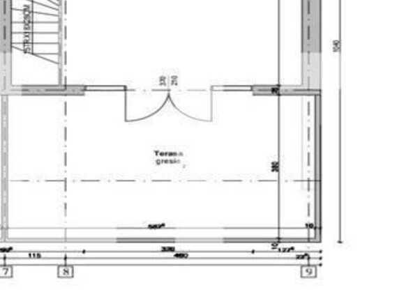
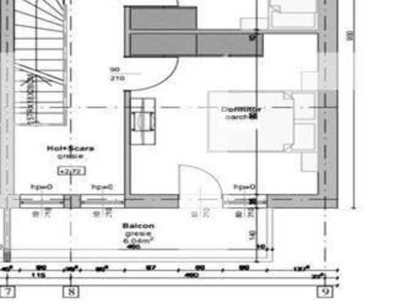
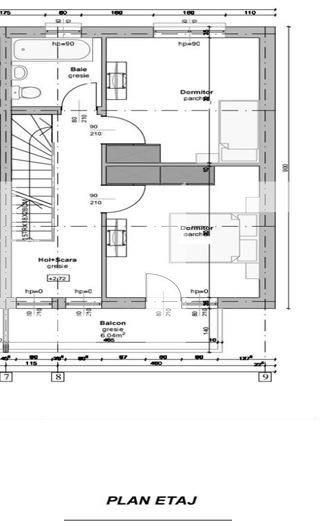
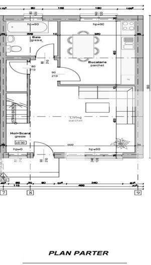
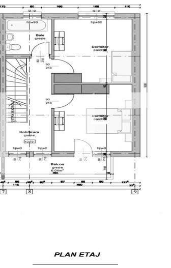
Suprafață casă: 117 mp
Teren: 95 mp
Număr de camere: 5
Nr. bucătării: 1
Nr. băi: 3
Nr. balcoane: 1
Niveluri: Parter, Etaj 1, Mansardă
Locuri de parcare: 1
Vechime casă: Nouă
Destinație: De locuit
Dotări: Nemobilat
Tip finisaj: Semifinisat
Tip acoperiș: Țiglă
Modalitate vânzare: Credit bancar, Cash
An construcție: 2022
Link-uri utile
Linkuri rapide filtrate după cele mai căutate zone și numărul de camere