Duplex Lux 4 camere, 197 mp, terasa 24 mp, Aviației
Blitz propune spre cumparare un penthouse tip duplex amplasat în Nordul Bucureștiului, aflat într-unul dintre cele mai apreciate proiecte rezidențiale. Întreg proiectul a fost gândit cu spații ample, extrem de generoase și compartimentate util. Terase spațioase, unde poți rescrie dimineață de dimineață, planurile unei zile perfecte.
In apropiere se află Promenada Mall și numeroase centre de top: Sky Tower, Green Court, Skanska, Globalworth, Afi Park Floreasca, Oregon Park etc.
Câteva detalii generale legate de proiect:
- Fațadă ventilată cu plăci ceramice
- Pereții de compartimentare dintre apartamente sunt din cărămidă eficientă și asigură o izolare fonică adecvată
- Distribuția agentului de încălzire în apartamente se face prin pardoseală
- Apartamentele dispun de instalații proprii de climatizare
- Beneficiați de sistem smart home integrat pentru: încălzire, răcire și video interfon
- 900 m2 de spațiu verde amenajat
În amenajarea duplexului au fost folosite finisaje speciale:
- Pardoseala este din parchet stratificat cu finisaj de stejar natur
- Sistemul de ventilație prezintă grile vizibile tip Lennox
- Iluminatul este prezent prin scafe perimetrale (benzi led) și spoturi ipsos încastrate în plafon
Grupurile sanitare prezintă finisaje de top:
- Lavoar MILO brand KOLPA-SAN
- Cadă TAMIA brand KOLPA-SAN (la baia matrimonială)
- Obiecte sanitare+cadre GEBERIT
- Baterii+accesorii negre - brand DANIEL RUBBINETERIE, colecția TOKYO
- Pardoseală+placare pereți - marmură FANTASY GREY
- Pereți: marmură FANTASY GREY+placare oglinzi
- Radiator NOVO CULT negru, brand IRSAP
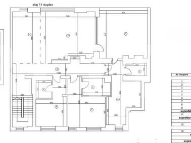
Compartimentarea duplex-ului:
- Living 59.39m2
- Bucătărie 17,95m2
- Casa scării 7.92m2
- Depozitare 2,90m2
- Baie 5.15m2
- Spălătorie 11,16m2
- Dormitor (1) 26,35m2
- Dormitor (2) 20,68m2
- Baie 5,54m2
- Baie 4,92m2
- Hol 4,98m2
- Balcon 22,62m2
Parcarea este la prețul de 20000 euro.
Va asteptam pentru vizionare!
Cod ofertă / ID BLITZ: P5195
Caracteristici
- Nr. camere4
- Suprafata utila197 mp
- Nr. bai3
- Nr. balcoane0
- Etaj11
- Tip compartimentareSemidecomandat
- Vechime apartamentNou
- Tip imobilBloc de apartamente
- DotariNemobilat
- Anul constructiei2021
- Tip finisajFinisat

Proiecte Speciale
Judet: Ilfov
Oras: București
Cartier: Aviatiei
Anunta-ma cand scade pretul


























