blitz logo
favorites

black arrow right Oferta accesata nu mai este disponibilă.

Poți vedea oferte din aceeași categorie sau poți contacta agentul pentru o oferta personalizată.

VEZI OFERTE SIMILARE

LINK-URI UTILE

Linkuri rapide filtrate după cele mai căutate zone și numărul de camere

Case de vânzareCase de vânzare Central
Casa de vânzare 3 camere Central - 130159CV | BLITZ Oradea | Poza1
Casa de vânzare 3 camere Central - 130159CV | BLITZ Oradea | Poza2
Casa de vânzare 3 camere Central - 130159CV | BLITZ Oradea | Poza1
Casa de vânzare 3 camere Central - 130159CV | BLITZ Oradea | Poza2
Casa de vânzare 3 camere Central - 130159CV | BLITZ Oradea | Poza1
Casa de vânzare 3 camere Central - 130159CV | BLITZ Oradea | Poza2

Casa zona ultracentral, 3 camere, 80mp

ID: BLITZ 130159CV

Cartier: Central

Preț/mp: 1.013 €

Actualizat: 13.05.2024

Rata lunară: 412,35

Agent

Sandu Botau

Senior Broker Partner

Acest anunț este verificat de către agent

Te interesează ofertă? Programează o vizionare!
Vă rugăm să completați chenarul cu informațiile cerute pentru a continua

81.00081.900 € (- 900 € )

Trimite ofertă de preț

Acest anunț este verificat de către agent

  €

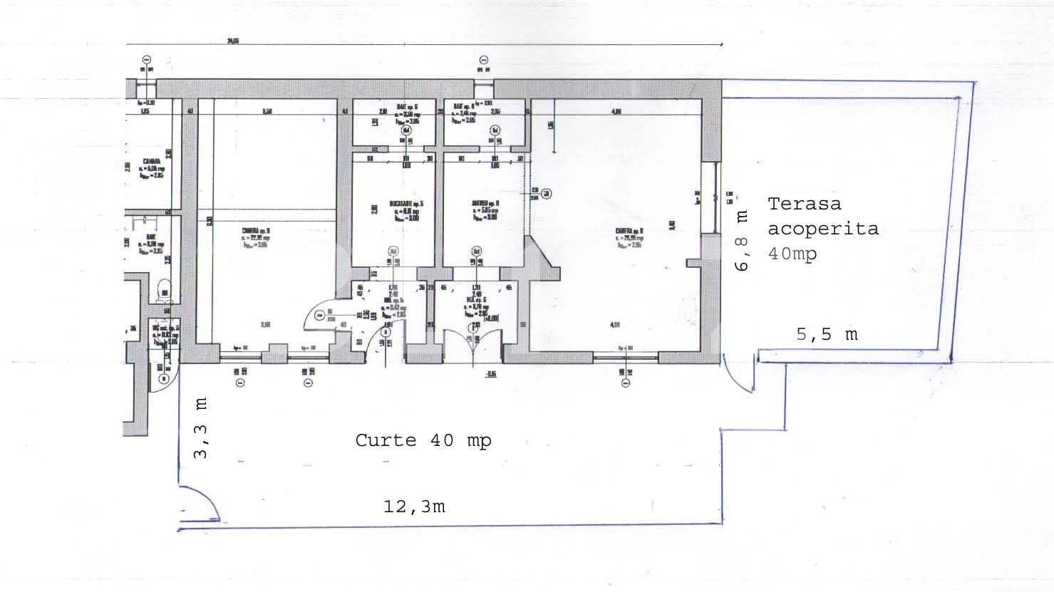
Suprafață casă: 80 mp

Teren: 190 mp

Număr de camere: 3

Nr. bucătării: 1

Nr. băi: 1

Niveluri: Parter

Vechime casă: Veche

Destinație: De locuit, Birouri/comercial

Dotări: Nemobilat

Tip finisaj: Renovabil

Materiale construcție: Beton, Cărămidă

Tip acoperiș: Țiglă

Modalitate vânzare: Credit bancar, Cash

An construcție: Inainte de 1990

Blitz imobiliare va ofera spre vanzare proprietate situata central catre parcul Bratianu, locuinta are curte separata, ceilati doi proprietari au fiecare curtea lui, doar gangul de intrare este comun. Suprafata construita este de 120 mp, suprafata utila 80 mp, 3 camere,1 bucatarie,1 hol generos, 1 camera alimente, 1 baie, podul este inalt bun pentru mansadare, curte proprie (70mp) din care o terasa acoperita din caramida cu posibilitate de extindere locuinta. Pozitionare foarte buna, curtea si casa are soare toata ziua, aproape de centru, scoala Oltea Doamna 500m , gradinita noua la capatul strazii 200m , magazine, parc. Imobilul este racordat la apa, curent si canalizare. Locuinta trebuie renovata integral. Total suprafata casa plus teren 190mp din care construit 120 mp. Posibilitate de utilizare si ca spatiu pentru birouri sau alte activitati economice.

Agent

Sandu Botau

Senior Broker Partner

Locatie centrala, imobilul trebuie renovat integral, un loc ferit de trafic si zgomot foarte bun pentru investitie.

Link-uri utile

Linkuri rapide filtrate după cele mai căutate zone și numărul de camere

black friday
Sună acumScrie mesaj
Inchide
X

Te interesează case de vânzare în Oradea?

Lasă-ne datele tale de contact şi te vom consilia în alegerea proprietăţii potrivite!