blitz logo
favorites

black arrow right Oferta accesata nu mai este disponibilă.

Poți vedea oferte din aceeași categorie sau poți contacta agentul pentru o oferta personalizată.

VEZI OFERTE SIMILARE

LINK-URI UTILE

Linkuri rapide filtrate după cele mai căutate zone și numărul de camere

Apartamente de vânzareApartamente de vânzare CentralApartamente de vânzare 2 camereApartamente de vânzare Central 2 camere
Apartament de vânzare 2 camere Central - 137308AV | BLITZ Craiova | Poza1
Apartament de vânzare 2 camere Central - 137308AV | BLITZ Craiova | Poza1
Apartament de vânzare 2 camere Central - 137308AV | BLITZ Craiova | Poza1

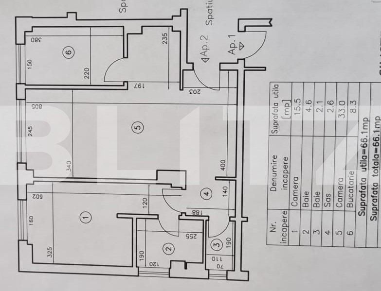
Apartament 2 camere, 66 mp, Central, zona Agronomie

ID: BLITZ 137308AV

Cartier: Central

Preț/mp: 1.470 €

Actualizat: 30.05.2024

Rata lunară: 493,80

Agent

Alin Olteanu

Specialist Broker Partner

Acest anunț este verificat de către agent

Te interesează ofertă? Programează o vizionare!
Vă rugăm să completați chenarul cu informațiile cerute pentru a continua

97.000100.000 € (- 3.000 € )

Trimite ofertă de preț

Acest anunț este verificat de către agent

  €

Nr. camere: 2

Suprafață utilă: 66 mp

Nr. băi: 2

Etaj: Parter /4

Locuri de parcare: 1 , In zona

Boxă la subsol: Nu

Tip compartimentare: Semidecomandat

Vechime apartament: Nou

Tip imobil: Bloc de apartamente

Dotări: Nemobilat

Anul construcției: 2023

Tip finisaj: Finisat

Blitz va propune un apartament cu 2 camere situat la parterul unui bloc cu 4 etaje. Acesta este situat intr-un imobil nou, dat in folosit in 2023. Apartamentul dispune de centrala termica, usa metalica, geamuri termopane si se preda la cheie. Fiind la parter acesta este pretabil atat pentru locuit cat si pentru spatiu comercial.
Pretul este negociabil!

Agent

Alin Olteanu

Specialist Broker Partner

Un apartament potrivit atat pentru locuit cat si pentru investitie/spatiu comercial

Link-uri utile

Linkuri rapide filtrate după cele mai căutate zone și numărul de camere

black friday
Sună acum
Inchide
X

Te interesează apartamente de vânzare în Craiova?

Lasă-ne datele tale de contact şi te vom consilia în alegerea proprietăţii potrivite!

Inchide
X

Te interesează apartamente de vânzare în Craiova?

Lasă-ne datele tale de contact şi te vom consilia în alegerea proprietăţii potrivite!