blitz logo
favorites

black arrow right Oferta accesata nu mai este disponibilă.

Poți vedea oferte din aceeași categorie sau poți contacta agentul pentru o oferta personalizată.

VEZI OFERTE SIMILARE

LINK-URI UTILE

Linkuri rapide filtrate după cele mai căutate zone și numărul de camere

Spații comerciale de închiriatSpații comerciale de închiriat SemicentralSpații comerciale de închiriat Semicentral, zona Gara
Spațiu comercial de închiriat Semicentral - 178991SIC | BLITZ Cluj-Napoca | Poza1
Spațiu comercial de închiriat Semicentral - 178991SIC | BLITZ Cluj-Napoca | Poza1
Spațiu comercial de închiriat Semicentral - 178991SIC | BLITZ Cluj-Napoca | Poza1

Spațiu comercial de închiriat, 96 mp, zona Gării

ID: BLITZ 178991SIC

Cartier: Semicentral

Actualizat: 09.04.2026

Zona: Gara
Agent

Cara Draganescu

Broker Partner

Te interesează ofertă? Programează o vizionare!
Vă rugăm să completați chenarul cu informațiile cerute pentru a continua

1.700

Trimite ofertă de preț

Acest anunț este verificat de către agent

  €

Suprafață: 96 mp

Tip spațiu: Parter de bloc

Tip finisaj: Finisat

Vechime spațiu: Nou

Locuri de parcare: 1

Disponibilitate: Azi

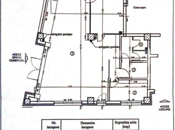
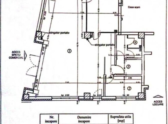
BLITZ propune spre inchiriere un spațiu comercial modern, cu suprafața utilă de 96 m², situat în zona Gării, una dintre cele mai circulate și accesibile zone din Cluj-Napoca – ideal pentru orice tip de activitate comercială sau de servicii.

Detalii proprietate:
Suprafață utilă spațiu comercial: 96,23 m²
Suprafață parcare subterană: 17,5 m² (loc individual inclus în proprietate)
Spațiu finisat cu materiale de calitate, pardoseli rezistente la trafic intens
Încălzire prin centrală termică pe gaz

Avantaje și flexibilitate:
Structură versatilă, care permite recompartimentare facilă după nevoile noului proprietar
Posibilitate de separare în 2 spații distincte, având deja 2 uși de acces spre exterior
Ideal pentru: magazine, showroom-uri, cabinete medicale sau stomatologice, birouri, agenții, spații de servicii

✔ Spațiu modern, luminos și bine poziționat
✔ Loc de parcare subteran inclus – un mare avantaj în zonă
✔ Acces facil la mijloace de transport și trafic pietonal intens
Cod ofertă / ID BLITZ: P154570

Agent

Cara Draganescu

Broker Partner

Link-uri utile

Linkuri rapide filtrate după cele mai căutate zone și numărul de camere

black friday
Sună acum
Inchide
X

Te interesează spații comerciale de închiriat în Cluj-Napoca?

Lasă-ne datele tale de contact şi te vom consilia în alegerea proprietăţii potrivite!

Inchide
X

Te interesează spații comerciale de închiriat în Cluj-Napoca?

Lasă-ne datele tale de contact şi te vom consilia în alegerea proprietăţii potrivite!