Oportunitate investitie, casa individuala, 264mp utili, 7 camere, Lacul Tarnita
Oferta accesata nu mai este disponibilă.
Poți vedea oferte din aceeași categorie sau poți contacta agentul pentru o oferta personalizată.
VEZI OFERTE SIMILARE
Oportunitate investitie, casa individuala, 264mp utili, 7 camere, Lacul Tarnita
Linkuri rapide filtrate după cele mai căutate zone și numărul de camere
ID: BLITZ 42366CV
Cartier: FloreştiPreț/mp: 914 €
Actualizat: 24.07.2023
Zona: TineretuluiRata lunară: 814,01 €
Anunță-mă când scade prețul
Trimite oferta de preț
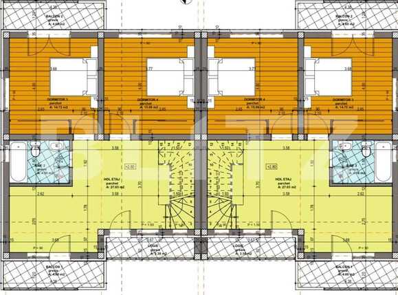
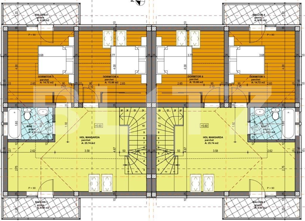
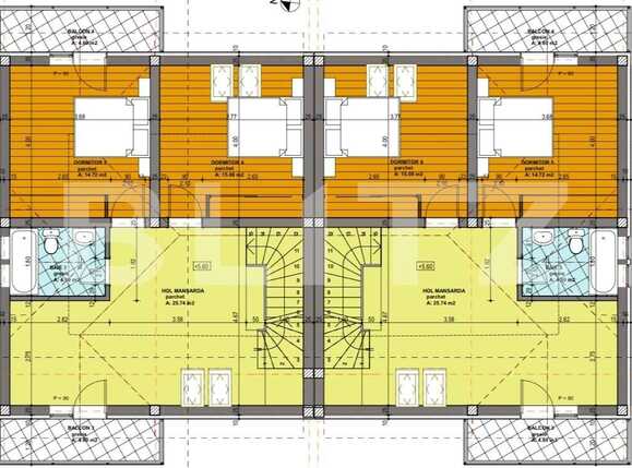
Suprafață casă: 175 mp
Teren: 325 mp
Număr de camere: 7
Nr. bucătării: 1
Nr. băi: 3
Nr. balcoane: 4
Niveluri: Parter, Etaj 1, Mansardă
Vechime casă: Nouă
Destinație: De locuit
Dotări: Nemobilat
Tip finisaj: Semifinisat
Materiale construcție: Cărămidă
Tip acoperiș: Tabla
Modalitate vânzare: Credit bancar, Cash
An construcție: 2019
Link-uri utile
Linkuri rapide filtrate după cele mai căutate zone și numărul de camere