Oportunitate investitie, casa individuala, 264mp utili, 7 camere, Lacul Tarnita
Oferta accesata nu mai este disponibilă.
Poți vedea oferte din aceeași categorie sau poți contacta agentul pentru o oferta personalizată.
VEZI OFERTE SIMILARELinkuri rapide filtrate după cele mai căutate zone și numărul de camere
ID: BLITZ 19304CV
Cartier: Dambul RotundPreț/mp: 828 €
Actualizat: 19.05.2017
Zona: AutogaraRata lunară: 758,52 €
Anunță-mă când scade prețul
Trimite oferta de preț
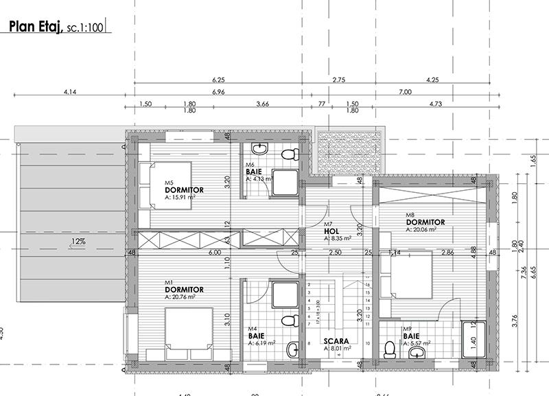
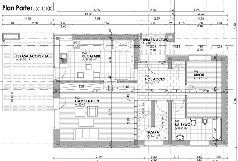
Suprafață casă: 180 mp
Teren: 480 mp
Număr de camere: 6
Nr. bucătării: 1
Nr. băi: 4
Niveluri: Demisol, Parter, Etaj 1
Vechime casă: Nouă
Destinație: De locuit
Dotări: Nemobilat
Tip finisaj: Semifinisat
Materiale construcție: Cărămidă
Tip acoperiș: Țiglă
Modalitate vânzare: Credit bancar, Cash
An construcție: 2015
Link-uri utile
Linkuri rapide filtrate după cele mai căutate zone și numărul de camere