Comision Zero, Exclusivitate, Casa individuala, 4 camere, 630 mp de teren, Rasca
Oferta accesata nu mai este disponibilă.
Poți vedea oferte din aceeași categorie sau poți contacta agentul pentru o oferta personalizată.
VEZI OFERTE SIMILARE
Comision Zero, Exclusivitate, Casa individuala, 4 camere, 630 mp de teren, Rasca
Linkuri rapide filtrate după cele mai căutate zone și numărul de camere
ID: BLITZ 62643CV
Cartier: FloreştiPreț/mp: 880 €
Actualizat: 08.04.2021
Zona: TerraRata lunară: 371,62 €
Anunță-mă când scade prețul
Trimite oferta de preț
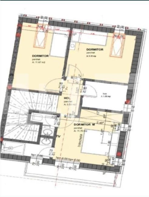
Suprafață casă: 83 mp
Teren: 80 mp
Număr de camere: 4
Nr. bucătării: 1
Nr. băi: 3
Nr. balcoane: 1
Niveluri: Demisol, Parter, Etaj 1
Locuri de parcare: 1
Vechime casă: Nouă
Destinație: De locuit
Dotări: Nemobilat
Tip finisaj: Semifinisat
Materiale construcție: Cărămidă
Tip acoperiș: Țiglă
Modalitate vânzare: Cash
An construcție: 2021
Link-uri utile
Linkuri rapide filtrate după cele mai căutate zone și numărul de camere