Oportunitate! Casa insiruita, 4 camere, 105 mp utili, teren 105 mp, Avram Iancu
Oferta accesata nu mai este disponibilă.
Poți vedea oferte din aceeași categorie sau poți contacta agentul pentru o oferta personalizată.
VEZI OFERTE SIMILARE
Oportunitate! Casa insiruita, 4 camere, 105 mp utili, teren 105 mp, Avram Iancu

Casă cu suflet și potențial în Suceagu – liniște, spațiu și apropiere de Cluj
Linkuri rapide filtrate după cele mai căutate zone și numărul de camere
ID: BLITZ 30449CV
Cartier: FloreştiPreț/mp: 969 €
Actualizat: 06.02.2023
Zona: TeilorRata lunară: 661,28 €
Anunță-mă când scade prețul
Trimite oferta de preț
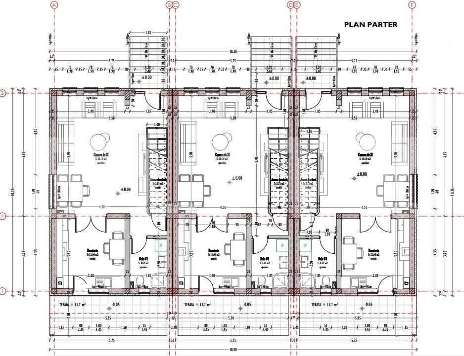
Suprafață casă: 134 mp
Teren: 132 mp
Număr de camere: 4
Nr. bucătării: 1
Nr. băi: 2
Nr. balcoane: 1
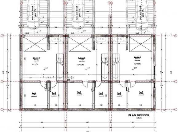
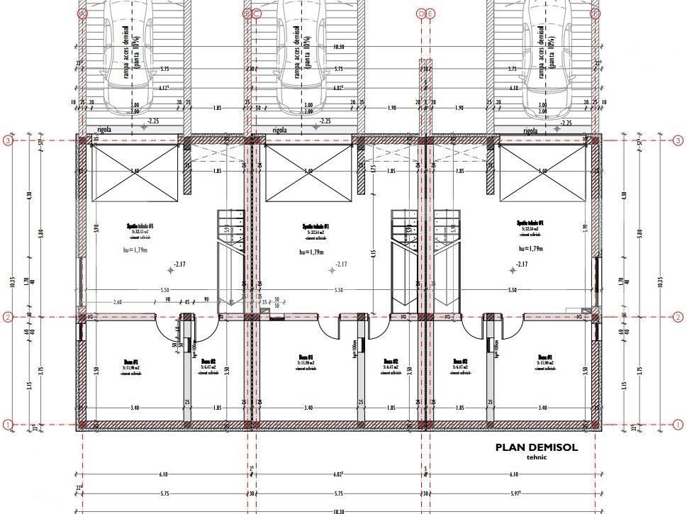
Niveluri: Demisol, Parter, Etaj 1
Vechime casă: Nouă
Destinație: De locuit
Dotări: Nemobilat
Tip finisaj: Semifinisat
Materiale construcție: Cărămidă
Tip acoperiș: Tabla
Modalitate vânzare: Credit bancar, Cash
An construcție: 2020
Link-uri utile
Linkuri rapide filtrate după cele mai căutate zone și numărul de camere