Duplex modern în Dezmir – 249 mp utili, teren generos 597 mp, complet mobilat
Anunță-mă când scade prețul
Trimite oferta de preț
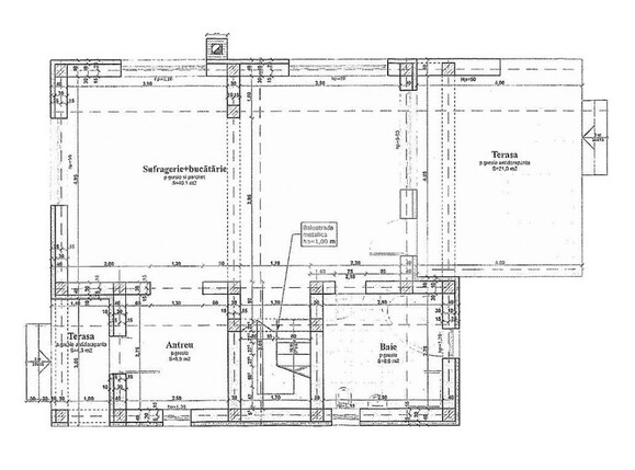
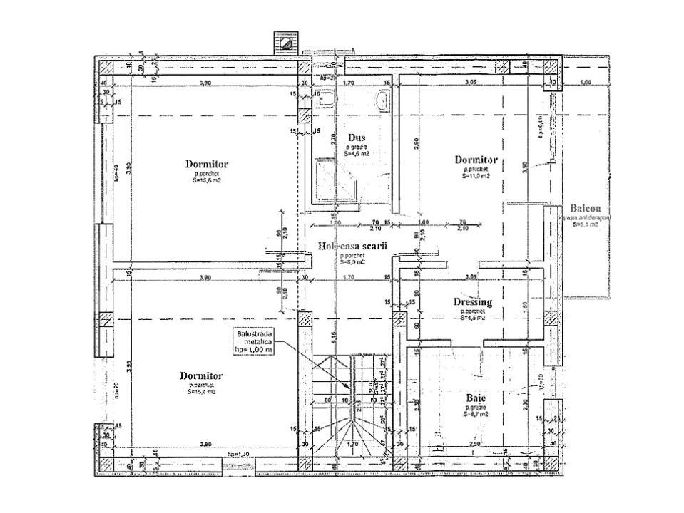
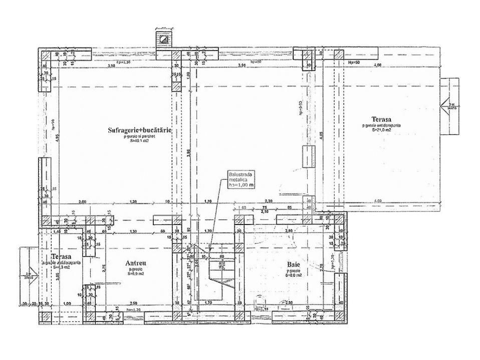
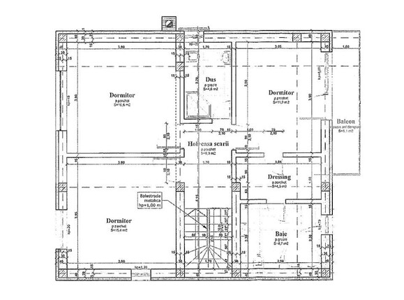
Suprafață casă: 126 mp
Teren: 500 mp
Număr de camere: 4
Nr. bucătării: 1
Nr. băi: 3
Nr. balcoane: 1
Locuri de parcare: 3
Vechime casă: Nouă
Dotări: Mobilat/utilat
Tip finisaj: Finisat
Tip acoperiș: Țiglă
An construcție: 2020
Evoluție Indice Blitz:
Duplex modern în Dezmir – 249 mp utili, teren generos 597 mp, complet mobilat
Agropensiune în mijlocul naturii – business la cheie, venit anual 30.000–40.000€
Oportunitate de investitie! Agropensiune în mijlocul naturii stil rustic | 180mp
Link-uri utile
Linkuri rapide filtrate după cele mai căutate zone și numărul de camere


