Apartament 3 camere, bloc nou, 57 mp, parcare si boxa, zona Iulius Mall
Oferta accesata nu mai este disponibilă.
Poți vedea oferte din aceeași categorie sau poți contacta agentul pentru o oferta personalizată.
VEZI OFERTE SIMILARELinkuri rapide filtrate după cele mai căutate zone și numărul de camere
ID: BLITZ 116747AV
Cartier: ZorilorPreț/mp: 2.800 €
Actualizat: 15.05.2024
Zona: Fara zonaRata lunară: 1.097,56 €
Anunță-mă când scade prețul
Trimite oferta de preț
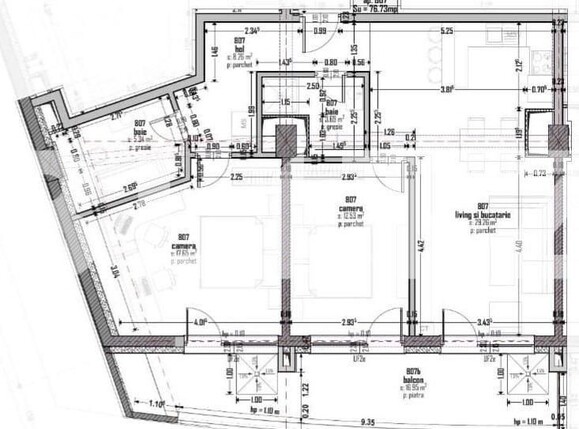
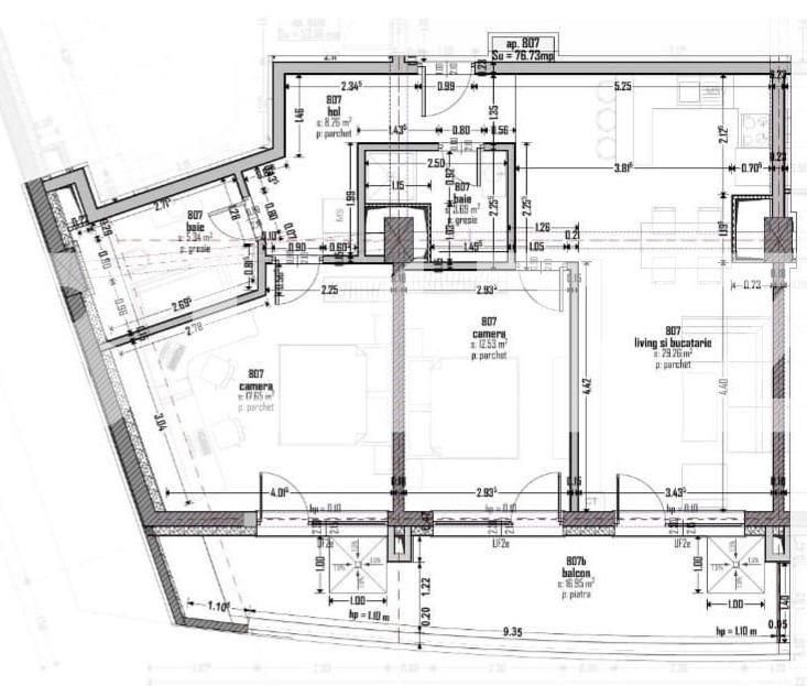
Nr. camere: 3
Suprafață utilă: 77 mp
Nr. băi: 2
Etaj: 8 /14
Locuri de parcare: 1 , Subteran
Boxă la subsol: Nu
Tip compartimentare: Semidecomandat
Vechime apartament: Nou
Tip imobil: Bloc de apartamente
Dotări: Nemobilat
Anul construcției: 2023
Tip finisaj: Semifinisat
Materiale construcție: Beton, Cărămidă
Modalitate vânzare: Credit bancar, Cash
Link-uri utile
Linkuri rapide filtrate după cele mai căutate zone și numărul de camere