Apartament cu 3 camere, 78 mp cu 2 balcoane si 2 parcari ,in zona Somesului
Oferta accesata nu mai este disponibilă.
Poți vedea oferte din aceeași categorie sau poți contacta agentul pentru o oferta personalizată.
VEZI OFERTE SIMILARE
Apartament cu 3 camere, 78 mp cu 2 balcoane si 2 parcari ,in zona Somesului

Apartament modern cu 3 camere, terasă spectaculoasă de 31 mp – zona Vivo Mall
Linkuri rapide filtrate după cele mai căutate zone și numărul de camere
Anunță-mă când scade prețul
Trimite oferta de preț
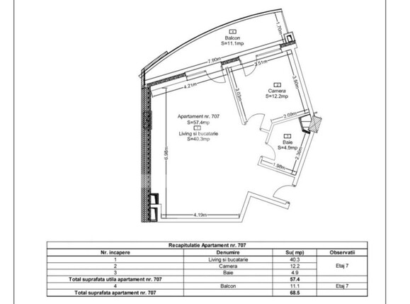
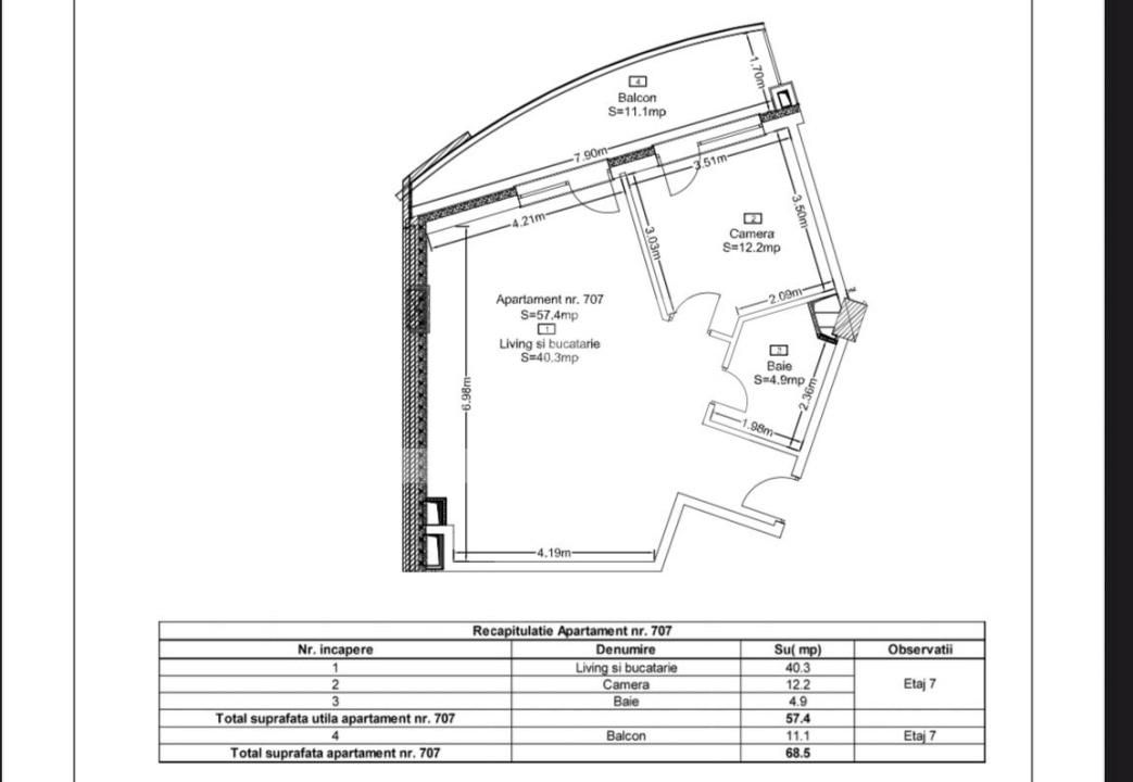
Nr. camere: 2
Suprafață utilă: 54.7 mp
Nr. băi: 1
Nr. balcoane: 1
Etaj: 7 /15
Tip compartimentare: Decomandat
Vechime apartament: Nou
Tip imobil: Bloc de apartamente
Dotări: Nemobilat
Anul construcției: 2021
Tip finisaj: Semifinisat
Link-uri utile
Linkuri rapide filtrate după cele mai căutate zone și numărul de camere