Apartament 2 camere, 50 mp, cu loc de parcare, zona Blocuri - Campia Turzii
Oferta accesata nu mai este disponibilă.
Poți vedea oferte din aceeași categorie sau poți contacta agentul pentru o oferta personalizată.
VEZI OFERTE SIMILARE
Apartament 2 camere, 50 mp, cu loc de parcare, zona Blocuri - Campia Turzii

COMISION 0 !! Apartamente 1-3 camere, 37-60 mp, intermediar, garaj, zona Terra
Linkuri rapide filtrate după cele mai căutate zone și numărul de camere
ID: BLITZ 79092AV
Cartier: FloreştiPreț/mp: 1.380 €
Actualizat: 16.02.2022
Zona: StejaruluiRata lunară: 323,26 €
Anunță-mă când scade prețul
Trimite oferta de preț
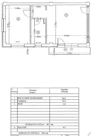
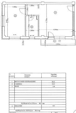
Nr. camere: 2
Suprafață utilă: 46 mp
Nr. băi: 1
Nr. balcoane: 1
Etaj: 2 /4
Locuri de parcare: 1
Boxă la subsol: Nu
Tip compartimentare: Semidecomandat
Vechime apartament: Nou
Tip imobil: Bloc de apartamente
Dotări: Parțial mobilat/utilat
Anul construcției: 2021
Tip finisaj: Modern/lux
Materiale construcție: Beton, Cărămidă
Modalitate vânzare: Credit bancar, Cash
Link-uri utile
Linkuri rapide filtrate după cele mai căutate zone și numărul de camere