APrtament cu 3 camere, parcare inclusa in pret, zona Somesului
Oferta accesata nu mai este disponibilă.
Poți vedea oferte din aceeași categorie sau poți contacta agentul pentru o oferta personalizată.
VEZI OFERTE SIMILARE
Apartament 42 mp, et 2, încălzire pardoseala, lift, parcare, priveliste, Baciu

EXCLUSIV! Apartament 3 camere, 60 mp, intermediar, parcare, Zona Tineretului !
Linkuri rapide filtrate după cele mai căutate zone și numărul de camere
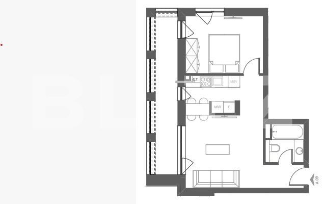
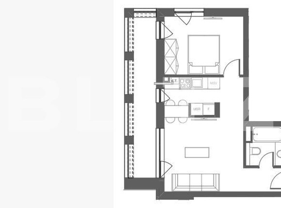
ID: BLITZ 179802AV
Cartier: FloreştiPreț/mp: 2.281 €
Actualizat: 27.01.2026
Zona: SomesuluiRata lunară: 472,11 €
Anunță-mă când scade prețul
Trimite oferta de preț
Nr. camere: 2
Suprafață utilă: 40.65 mp
Nr. băi: 1
Nr. balcoane: 1
Etaj: 1 /5
Locuri de parcare: 2 , Garaj
Tip compartimentare: Semidecomandat
Vechime apartament: În construcție
Tip imobil: Bloc de apartamente
Dotări: Nemobilat
Anul construcției: 2026
Tip finisaj: Finisat
Link-uri utile
Linkuri rapide filtrate după cele mai căutate zone și numărul de camere