blitz logo
favorites

black arrow right Oferta accesata nu mai este disponibilă.

Poți vedea oferte din aceeași categorie sau poți contacta agentul pentru o oferta personalizată.

VEZI OFERTE SIMILARE

LINK-URI UTILE

Linkuri rapide filtrate după cele mai căutate zone și numărul de camere

Apartamente de vânzareApartamente de vânzare FloreştiApartamente de vânzare 2 camereApartamente de vânzare Floreşti 2 camereApartamente de vânzare Floreşti, zona Terra
Apartament de vânzare 2 camere Floreşti - 175505AV | BLITZ Cluj-Napoca | Poza1
Apartament de vânzare 2 camere Floreşti - 175505AV | BLITZ Cluj-Napoca | Poza2
Apartament de vânzare 2 camere Floreşti - 175505AV | BLITZ Cluj-Napoca | Poza1
Apartament de vânzare 2 camere Floreşti - 175505AV | BLITZ Cluj-Napoca | Poza2
Apartament de vânzare 2 camere Floreşti - 175505AV | BLITZ Cluj-Napoca | Poza1
Apartament de vânzare 2 camere Floreşti - 175505AV | BLITZ Cluj-Napoca | Poza2

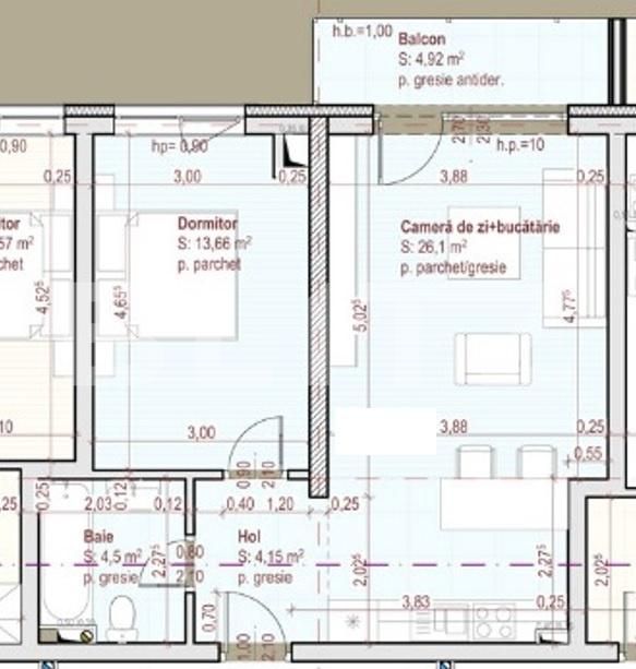
Apartament cu 2 camere, 48,5 mp, + balcon 5 mp, etaj 2/3, bloc NZEB, zona Terra

ID: BLITZ 175505AV

Cartier: Floreşti

Preț/mp: 1.540 €

Actualizat: 17.02.2026

Zona: Terra

Rata lunară: 380,33

Agent

Marius Butnariu

Expert Broker Partner

Te interesează ofertă? Programează o vizionare!
Vă rugăm să completați chenarul cu informațiile cerute pentru a continua

74.711

Trimite ofertă de preț

Acest anunț este verificat de către agent

  €

Nr. camere: 2

Suprafață utilă: 48.5 mp

Nr. băi: 1

Nr. balcoane: 1

Etaj: 2 /3

Tip compartimentare: Semidecomandat

Vechime apartament: În construcție

Tip imobil: Bloc de apartamente

Dotări: Nemobilat

Anul construcției: 2025

Tip finisaj: Semifinisat

Blitz va prezinta un apartament modern cu 2 camere – 48,5 mp + balcon 5 mp | Etaj 2/3 – Zona Terra, Florești

Bucurați-vă de confort, economie și calitate într-un apartament situat într-un bloc nou construit la standarde NZEB (consum de energie aproape zero) – ceea ce înseamnă facturi reduse la utilități, izolație termică și fonică superioară și un mediu de locuit mai sănătos.

Locuința are o suprafață utilă de 48,5 mp, completată de un balcon de 5 mp, fiind compusă din living spațios cu bucătărie open-space, dormitor luminos și baie modernă. Se predă semifinisat, cu geamuri tripan, instalații trase pe poziție și ușă metalică la intrare – gata pentru a fi personalizat după gustul dumneavoastră.

Bloc mic, cu doar 3 etaje, parte a unui ansamblu de 2 imobile, cu parc de joacă pentru copii, alei verzi, zonă de relaxare și parcări subterane. Zona este aerisită, cu multiple căi de acces către Cluj-Napoca.

La pretul afisat se adauga TVA de 21%.

📞 Contactați-ne pentru detalii și programarea unei vizionări!
Cod ofertă / ID BLITZ: P150841

Agent

Marius Butnariu

Expert Broker Partner

Link-uri utile

Linkuri rapide filtrate după cele mai căutate zone și numărul de camere

black friday
Sună acum
Inchide
X

Te interesează apartamente de vânzare în Cluj-Napoca?

Lasă-ne datele tale de contact şi te vom consilia în alegerea proprietăţii potrivite!

Inchide
X

Te interesează apartamente de vânzare în Cluj-Napoca?

Lasă-ne datele tale de contact şi te vom consilia în alegerea proprietăţii potrivite!