Apartament cu 2 camere, etajul 3 din 4, zona linistita, Gheorgheni
Oferta accesata nu mai este disponibilă.
Poți vedea oferte din aceeași categorie sau poți contacta agentul pentru o oferta personalizată.
VEZI OFERTE SIMILARE
Apartament semidecomandat complet mobilat si utilat, parcare inclusa, zona Terra

Apartament decomandat cu 2 camere, 41 mp utili, parcare inclusa, zona Terra
Linkuri rapide filtrate după cele mai căutate zone și numărul de camere
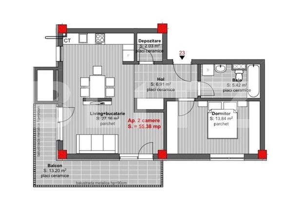
ID: BLITZ 136000AV
Cartier: FloreştiPreț/mp: 1.598 €
Actualizat: 15.05.2024
Zona: CetatiiRata lunară: 455,62 €
Anunță-mă când scade prețul
Trimite oferta de preț
Nr. camere: 2
Suprafață utilă: 56 mp
Nr. băi: 1
Etaj: 3 /3
Boxă la subsol: Nu
Tip compartimentare: Semidecomandat
Vechime apartament: Nou
Tip imobil: Bloc de apartamente
Dotări: Modern/lux
Anul construcției: 2022
Tip finisaj: Modern/lux
Materiale construcție: Cărămidă
Modalitate vânzare: Credit bancar, Cash
Link-uri utile
Linkuri rapide filtrate după cele mai căutate zone și numărul de camere