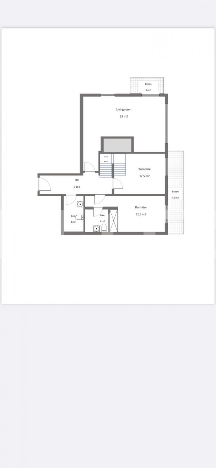
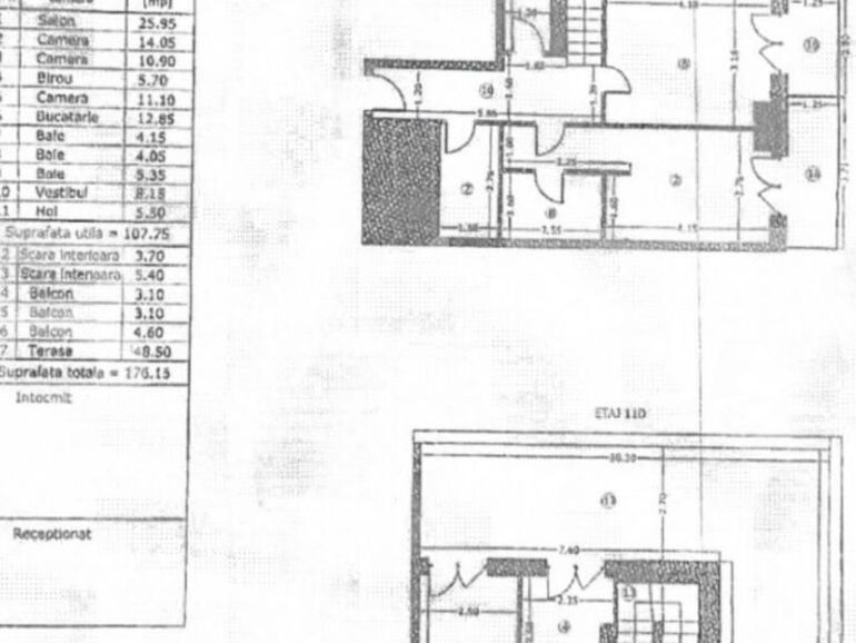
Apartament 5 camere, 120 mp, 2 bai, zona Ultracentrala
Oferta accesata nu mai este disponibilă.
Poți vedea oferte din aceeași categorie sau poți contacta agentul pentru o oferta personalizată.
VEZI OFERTE SIMILARELinkuri rapide filtrate după cele mai căutate zone și numărul de camere
Anunță-mă când scade prețul
Trimite oferta de preț
Nr. camere: 4+
Suprafață utilă: 190 mp
Nr. băi: 3
Nr. balcoane: 3
Etaj: 11 /12
Locuri de parcare: 1
Boxă la subsol: Da
Tip compartimentare: Decomandat
Vechime apartament: Nou
Tip imobil: Bloc de apartamente
Dotări: Parțial mobilat/utilat
Anul construcției: 2009
Tip finisaj: Finisat
Materiale construcție: Beton, Cărămidă
Modalitate vânzare: Credit bancar, Cash
Link-uri utile
Linkuri rapide filtrate după cele mai căutate zone și numărul de camere