blitz logo
favorites

black arrow right Oferta accesata nu mai este disponibilă.

Poți vedea oferte din aceeași categorie sau poți contacta agentul pentru o oferta personalizată.

VEZI OFERTE SIMILARE

LINK-URI UTILE

Linkuri rapide filtrate după cele mai căutate zone și numărul de camere

Apartamente de vânzareApartamente de vânzare SudApartamente de vânzare 3 camereApartamente de vânzare Sud 3 camere
Apartament de vânzare 3 camere Sud - 144654AV | BLITZ Timișoara | Poza1
Apartament de vânzare 3 camere Sud - 144654AV | BLITZ Timișoara | Poza1
Apartament de vânzare 3 camere Sud - 144654AV | BLITZ Timișoara | Poza1

Apartament cu 3 camere, 74mp, zona Giroc

ID: BLITZ 144654AV

Cartier: Sud

Preț/mp: 1.630 €

Actualizat: 12.06.2025

Rata lunară: 614,45

Agent

    Te interesează ofertă? Programează o vizionare!
    Vă rugăm să completați chenarul cu informațiile cerute pentru a continua

    120.700120.800 € (- 100 € )

    Trimite ofertă de preț

    Acest anunț este verificat de către agent

      €

    Nr. camere: 3

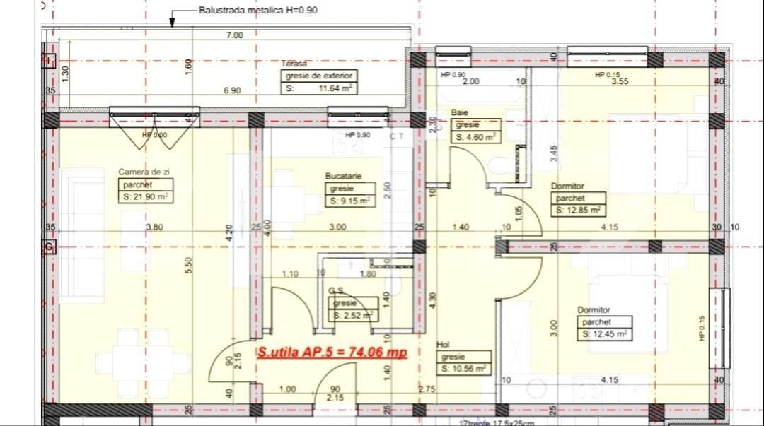
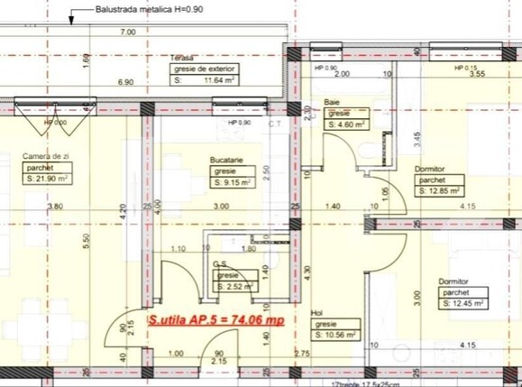
    Suprafață utilă: 74.06 mp

    Nr. băi: 2

    Nr. balcoane: 1

    Etaj: 1 /3

    Locuri de parcare: 1

    Tip compartimentare: Decomandat

    Vechime apartament: Nou

    Tip imobil: Bloc de apartamente

    Dotări: Nemobilat

    Anul construcției: 2023

    Tip finisaj: Finisat

    Blitz va ofera spre vanzare un apartament de trei camere, 74,06 mp utili, in zona Giroc, o zona foarte cautata si cu un potential marit, datorita dezvoltarii zonei si beneficiilor pe care le prezinta. Apartamentul este situat la etajul 1 al unui bloc cu 3 etaje care are lift, unde mai sunt disponibile si alte apartamente si este desfasurat astfel: hol, living, bucatarie , doua dormitoare, 2 bai, terasa de 6,90 mp.
    Apartamentul are un loc de parcare inclus in pret.
    Va asteptam la vizionare.
    Cod ofertă / ID BLITZ: P5906

    Agent

    Link-uri utile

    Linkuri rapide filtrate după cele mai căutate zone și numărul de camere

    black friday
    Sună acum
    Inchide
    X

    Te interesează apartamente de vânzare în Timișoara?

    Lasă-ne datele tale de contact şi te vom consilia în alegerea proprietăţii potrivite!

    Inchide
    X

    Te interesează apartamente de vânzare în Timișoara?

    Lasă-ne datele tale de contact şi te vom consilia în alegerea proprietăţii potrivite!