blitz logo
favorites

black arrow right Oferta accesata nu mai este disponibilă.

Poți vedea oferte din aceeași categorie sau poți contacta agentul pentru o oferta personalizată.

VEZI OFERTE SIMILARE

LINK-URI UTILE

Linkuri rapide filtrate după cele mai căutate zone și numărul de camere

Apartamente de vânzareApartamente de vânzare SemicentralApartamente de vânzare 3 camereApartamente de vânzare Semicentral 3 camere
Apartament de vânzare 3 camere Semicentral - 191832AV | BLITZ Timișoara | Poza1
Apartament de vânzare 3 camere Semicentral - 191832AV | BLITZ Timișoara | Poza1
Apartament de vânzare 3 camere Semicentral - 191832AV | BLITZ Timișoara | Poza1

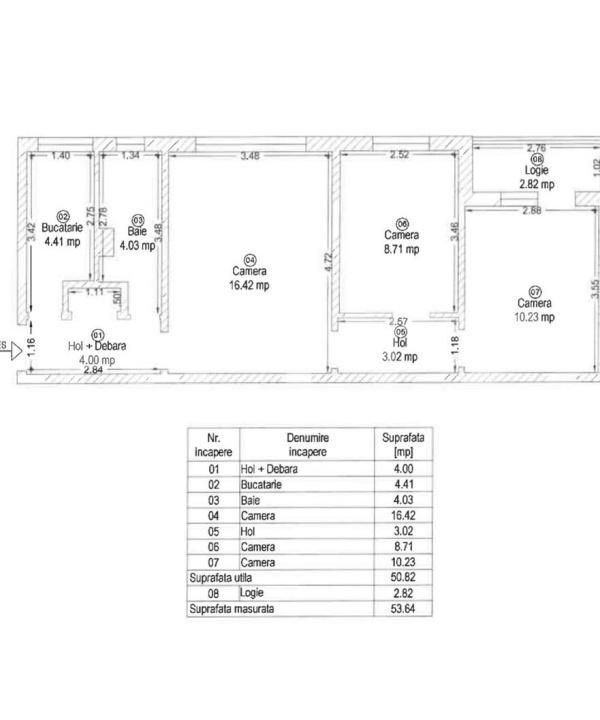
Apartament 3 camere, 54 mp, zona Semicentral

ID: BLITZ 191832AV

Cartier: Semicentral

Preț/mp: 2.481 €

Actualizat: 01.04.2026

Rata lunară: 682,16

Agent

Timeea Vas

Broker Partner

Te interesează ofertă? Programează o vizionare!
Vă rugăm să completați chenarul cu informațiile cerute pentru a continua

134.000

Trimite ofertă de preț

Acest anunț este verificat de către agent

  €

Nr. camere: 3

Suprafață utilă: 54 mp

Nr. băi: 1

Etaj: 3 /4

Boxă la subsol: Da

Tip compartimentare: Semidecomandat

Vechime apartament: Nou

Tip imobil: Bloc de apartamente

Dotări: Mobilat/utilat

Anul construcției: Inainte de 1990

Tip finisaj: Finisat

Blitz va propune se vanzare un apartament modern cu 3 camere, renovat in anul 2025, 54 mp, balconul deschis, situat la 10 minute de mers pe jos de centrul Timisoarei.

Apartamentul este compus din 3 camere, bucatarie, baie , este completa mobilat si utilat, disponibilitate imediata.
Cod ofertă / ID BLITZ: P168483

Agent

Timeea Vas

Broker Partner

Link-uri utile

Linkuri rapide filtrate după cele mai căutate zone și numărul de camere

black friday
Sună acum
Inchide
X

Te interesează apartamente de vânzare în Timișoara?

Lasă-ne datele tale de contact şi te vom consilia în alegerea proprietăţii potrivite!

Inchide
X

Te interesează apartamente de vânzare în Timișoara?

Lasă-ne datele tale de contact şi te vom consilia în alegerea proprietăţii potrivite!