blitz logo
favorites

black arrow right Oferta accesata nu mai este disponibilă.

Poți vedea oferte din aceeași categorie sau poți contacta agentul pentru o oferta personalizată.

VEZI OFERTE SIMILARE

LINK-URI UTILE

Linkuri rapide filtrate după cele mai căutate zone și numărul de camere

Apartamente de vânzareApartamente de vânzare DumbravitaApartamente de vânzare 3 camereApartamente de vânzare Dumbravita 3 camere
Apartament de vânzare 3 camere Dumbravita - 144559AV | BLITZ Timișoara | Poza1
Apartament de vânzare 3 camere Dumbravita - 144559AV | BLITZ Timișoara | Poza1
Apartament de vânzare 3 camere Dumbravita - 144559AV | BLITZ Timișoara | Poza1

Apartament 3 camere, 85 mp, terasa 38 mp, 2 locuri parcare, Dumbravita

ID: BLITZ 144559AV

Cartier: Dumbravita

Preț/mp: 1.694 €

Actualizat: 14.05.2024

Rata lunară: 733,06

Agent

Gheorghe Maniu

Broker Partner

Te interesează ofertă? Programează o vizionare!
Vă rugăm să completați chenarul cu informațiile cerute pentru a continua

144.000

Trimite ofertă de preț

Acest anunț este verificat de către agent

  €

Nr. camere: 3

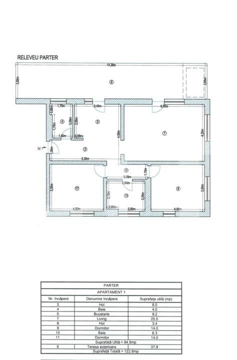
Suprafață utilă: 85 mp

Nr. băi: 2

Etaj: Parter /2

Locuri de parcare: 2

Tip compartimentare: Decomandat

Vechime apartament: Vechi

Tip imobil: Bloc de apartamente

Dotări: Nemobilat

Anul construcției: 2023

Tip finisaj: Finisat

Blitz va propune spre vanzare un apartament cu 3 camere, decomandat, situat in localitatea Dumbravita, zona Central, aflat la Parterul unui bloc cu regim de inaltime pe Parter + 1 Etaj + Mansarda. Anul constructiei 2023, structura beton, material zidarie caramida termobloc. Suprafata utila de 84,9 mp + terasa de 37,9 mp.
Apartamentul se vinde la cheie cu posibilitatea de a alege finisajele in limita unui buget a dezvoltatorului.
Incalzirea se realizeaza prin intermediul centralei proprii cu incalzire in pardoseala. Apartamentul dispune de 2 locuri de parcare.
Pretul este de 144000 +19% TVA
Va asteptam cu drag la o vizionare!
Cod ofertă / ID BLITZ: P99623

Agent

Gheorghe Maniu

Broker Partner

Link-uri utile

Linkuri rapide filtrate după cele mai căutate zone și numărul de camere

black friday
Sună acum
Inchide
X

Te interesează apartamente de vânzare în Timișoara?

Lasă-ne datele tale de contact şi te vom consilia în alegerea proprietăţii potrivite!

Inchide
X

Te interesează apartamente de vânzare în Timișoara?

Lasă-ne datele tale de contact şi te vom consilia în alegerea proprietăţii potrivite!