Apartament 2 camere + birou, terasă generoasă și 2 parcări incluse – Giroc
Anunță-mă când scade prețul
Trimite oferta de preț
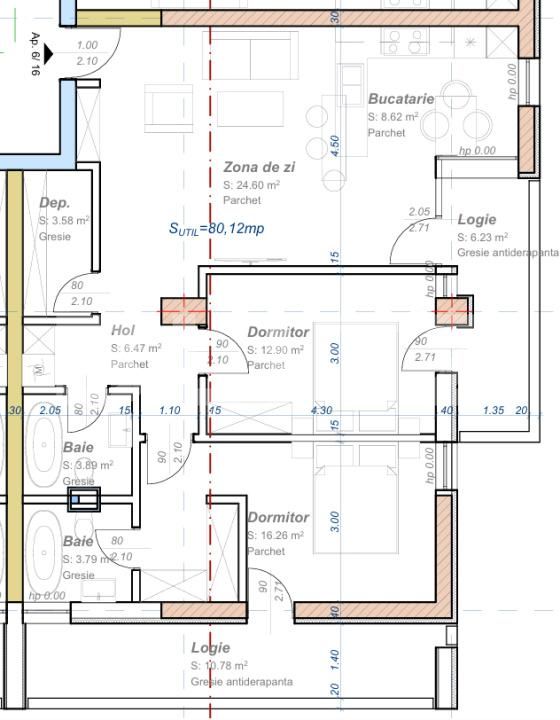
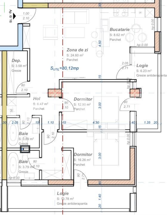
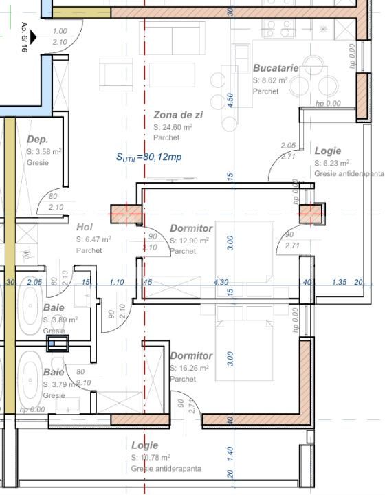
Nr. camere: 3
Suprafață utilă: 80 mp
Nr. băi: 2
Nr. balcoane: 2
Etaj: 1 /7
Tip compartimentare: Semidecomandat
Vechime apartament: În construcție
Tip imobil: Bloc de apartamente
Dotări: Nemobilat
Anul construcției: 2025
Tip finisaj: Finisat
Evoluție Indice Blitz:
Apartament 2 camere + birou, terasă generoasă și 2 parcări incluse – Giroc
SUPER OFERTA! Apartament 3 camere decomandat, PRIVELISTE PANORAMICA DENYA FOREST
Link-uri utile
Linkuri rapide filtrate după cele mai căutate zone și numărul de camere

