blitz logo
favorites

black arrow right Oferta accesata nu mai este disponibilă.

Poți vedea oferte din aceeași categorie sau poți contacta agentul pentru o oferta personalizată.

VEZI OFERTE SIMILARE

LINK-URI UTILE

Linkuri rapide filtrate după cele mai căutate zone și numărul de camere

Apartamente de vânzareApartamente de vânzare PlopiApartamente de vânzare 2 camereApartamente de vânzare Plopi 2 camere
Apartament de vânzare 2 camere Plopi - 65621AV | BLITZ Timișoara | Poza1
Apartament de vânzare 2 camere Plopi - 65621AV | BLITZ Timișoara | Poza1
Apartament de vânzare 2 camere Plopi - 65621AV | BLITZ Timișoara | Poza1

Apartament de 2 camere + gradina, zona Magheru

ID: BLITZ 65621AV

Cartier: Plopi

Preț/mp: 1.254 €

Actualizat: 27.08.2021

Rata lunară: 306,46

Agent

    Acest anunț este verificat de către agent

    Te interesează ofertă? Programează o vizionare!
    Vă rugăm să completați chenarul cu informațiile cerute pentru a continua

    60.200

    Trimite ofertă de preț

    Acest anunț este verificat de către agent

      €

    Nr. camere: 2

    Suprafață utilă: 48 mp

    Nr. băi: 1

    Etaj: Parter /2

    Boxă la subsol: Nu

    Tip compartimentare: Semidecomandat

    Vechime apartament: Nou

    Tip imobil: Bloc de apartamente

    Dotări: Nemobilat

    Anul construcției: 2021

    Tip finisaj: Semifinisat

    Materiale construcție: Cărămidă

    Modalitate vânzare: Credit bancar, Cash

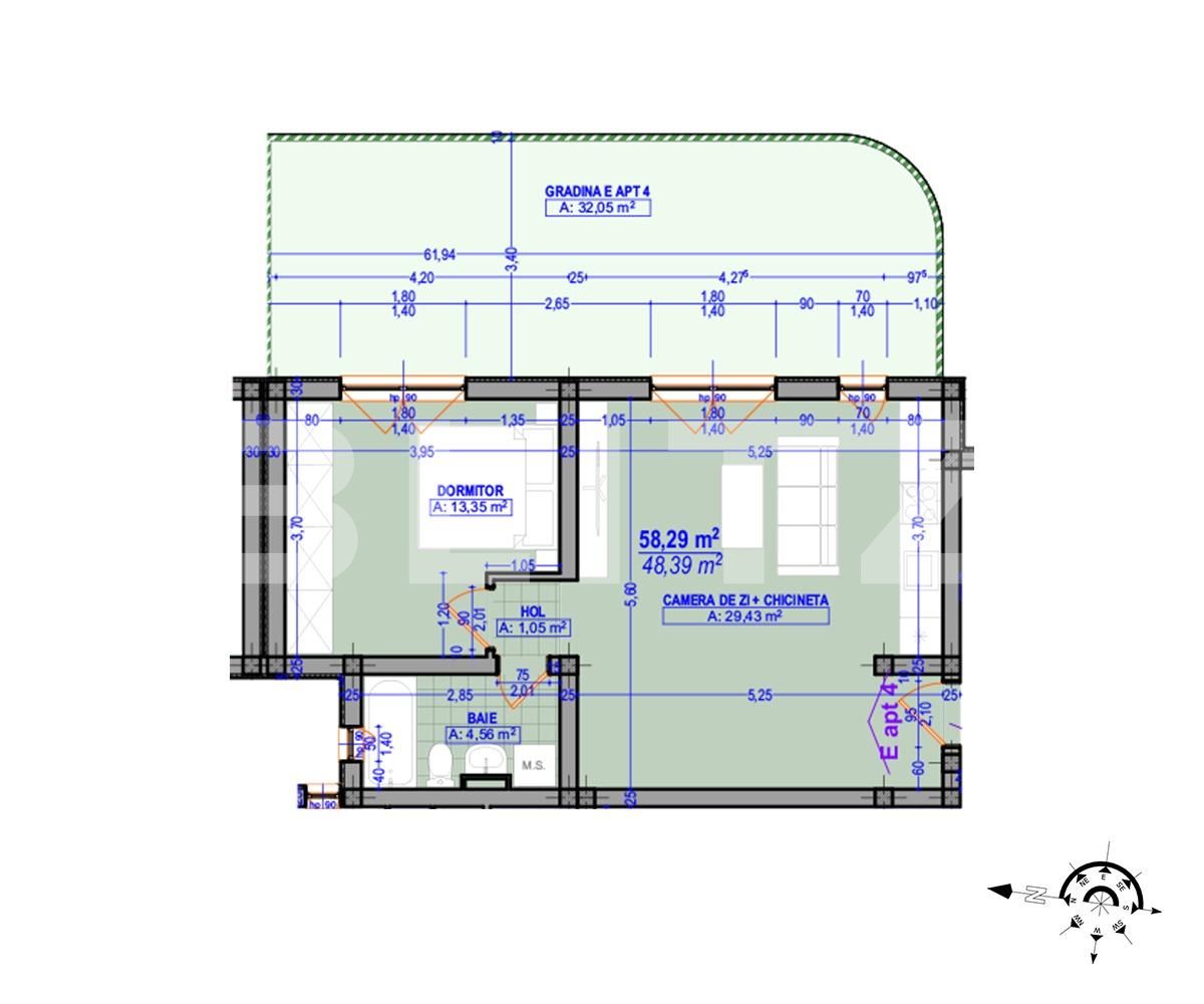
    Blitz va ofera spre vanzare un apartament spatios de 2 camere, in zona Magheru. Acesta este compartimentat astfel: 1 living cu bucatarie de 29mp, 1 dormitor, si o baie. Apartamentul este situat la parterul unui imobil pe 2 niveluri, ceea ce reprezinta disponibilitatea unei gradini. Optional se poate achizitiona un loc de parcare subteran la pretul de 4500 euro si suprateran la pretul de 2500 euro.

    Complexul rezidential o sa dispuna de :
    Securizat de o companie de pază privată
    Bazin pentru rezidenții cartierului
    Un parc cu zona de grătar
    Parcare subterana si supraterană
    Carrefour Exress
    Cabinet Stomatologic
    Coafor
    Sala de fitness

    Agent

    Apartamentul este ideal pentru un cuplu tanar!

    Link-uri utile

    Linkuri rapide filtrate după cele mai căutate zone și numărul de camere

    black friday
    Sună acum
    Inchide
    X

    Te interesează apartamente de vânzare în Timișoara?

    Lasă-ne datele tale de contact şi te vom consilia în alegerea proprietăţii potrivite!

    Inchide
    X

    Te interesează apartamente de vânzare în Timișoara?

    Lasă-ne datele tale de contact şi te vom consilia în alegerea proprietăţii potrivite!