blitz logo
favorites

black arrow right Oferta accesata nu mai este disponibilă.

Poți vedea oferte din aceeași categorie sau poți contacta agentul pentru o oferta personalizată.

VEZI OFERTE SIMILARE

LINK-URI UTILE

Linkuri rapide filtrate după cele mai căutate zone și numărul de camere

Apartamente de vânzareApartamente de vânzare DumbravitaApartamente de vânzare 2 camereApartamente de vânzare Dumbravita 2 camere
Apartament de vânzare 2 camere Dumbravita - 165092AV | BLITZ Timișoara | Poza1
Apartament de vânzare 2 camere Dumbravita - 165092AV | BLITZ Timișoara | Poza1
Apartament de vânzare 2 camere Dumbravita - 165092AV | BLITZ Timișoara | Poza1

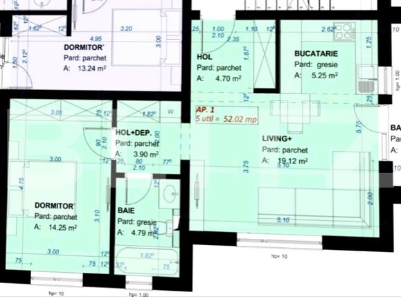
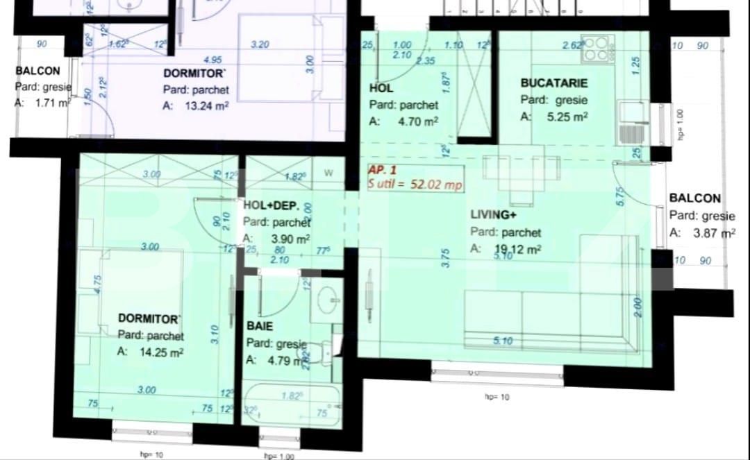
Apartament 2 camere, 52 mp, loc parcare inclus, Dumbravita

ID: BLITZ 165092AV

Cartier: Dumbravita

Preț/mp: 1.846 €

Actualizat: 05.02.2025

Rata lunară: 488,71

Agent

Ioana Milos

Broker Partner

Te interesează ofertă? Programează o vizionare!
Vă rugăm să completați chenarul cu informațiile cerute pentru a continua

96.000

Trimite ofertă de preț

Acest anunț este verificat de către agent

  €

Nr. camere: 2

Suprafață utilă: 52 mp

Nr. băi: 1

Nr. balcoane: 1

Etaj: 1 /2

Locuri de parcare: 1

Tip compartimentare: Semidecomandat

Vechime apartament: Nou

Tip imobil: Bloc de apartamente

Dotări: Nemobilat

Anul construcției: 2023

Tip finisaj: Finisat

Blitz va propune spre vanzare un apartament cu 2 camere, semidecomandat, situat in localitatea Dumbravita aflat la Etajul 1 si 2 a unui bloc cu regim de inaltime pe Parter + 2 Etaje.
Suprafata utila de 52mp + balcon.
Apartamentul se vinde la cheie.
Incalzirea se realizeaza prin intermediul centralei proprii cu incalzire in pardoseala. Apartamentul dispune de 1 loc de parcare inclus in pret.
Pretul este de 96.000 euro cu TVA inclus.
Va asteptam cu drag la o vizionare!
Cod ofertă / ID BLITZ: P139226

Agent

Ioana Milos

Broker Partner

Link-uri utile

Linkuri rapide filtrate după cele mai căutate zone și numărul de camere

black friday
Sună acumScrie mesaj
Inchide
X

Te interesează apartamente de vânzare în Timișoara?

Lasă-ne datele tale de contact şi te vom consilia în alegerea proprietăţii potrivite!