blitz logo
favorites

black arrow right Oferta accesata nu mai este disponibilă.

Poți vedea oferte din aceeași categorie sau poți contacta agentul pentru o oferta personalizată.

VEZI OFERTE SIMILARE

LINK-URI UTILE

Linkuri rapide filtrate după cele mai căutate zone și numărul de camere

Apartamente de vânzareApartamente de vânzare DumbravitaApartamente de vânzare 2 camereApartamente de vânzare Dumbravita 2 camere
Apartament de vânzare 2 camere Dumbravita - 136622AV | BLITZ Timișoara | Poza1
Apartament de vânzare 2 camere Dumbravita - 136622AV | BLITZ Timișoara | Poza1
Apartament de vânzare 2 camere Dumbravita - 136622AV | BLITZ Timișoara | Poza1

Apartament cu 2 camere, 60 mp, 33 mp terasa, 2 locuri parcare, Dumbravita

ID: BLITZ 136622AV

Cartier: Dumbravita

Preț/mp: 1.733 €

Actualizat: 08.05.2024

Rata lunară: 529,43

Agent

Gheorghe Maniu

Broker Partner

Acest anunț este verificat de către agent

Te interesează ofertă? Programează o vizionare!
Vă rugăm să completați chenarul cu informațiile cerute pentru a continua

104.000

Trimite ofertă de preț

Acest anunț este verificat de către agent

  €

Nr. camere: 2

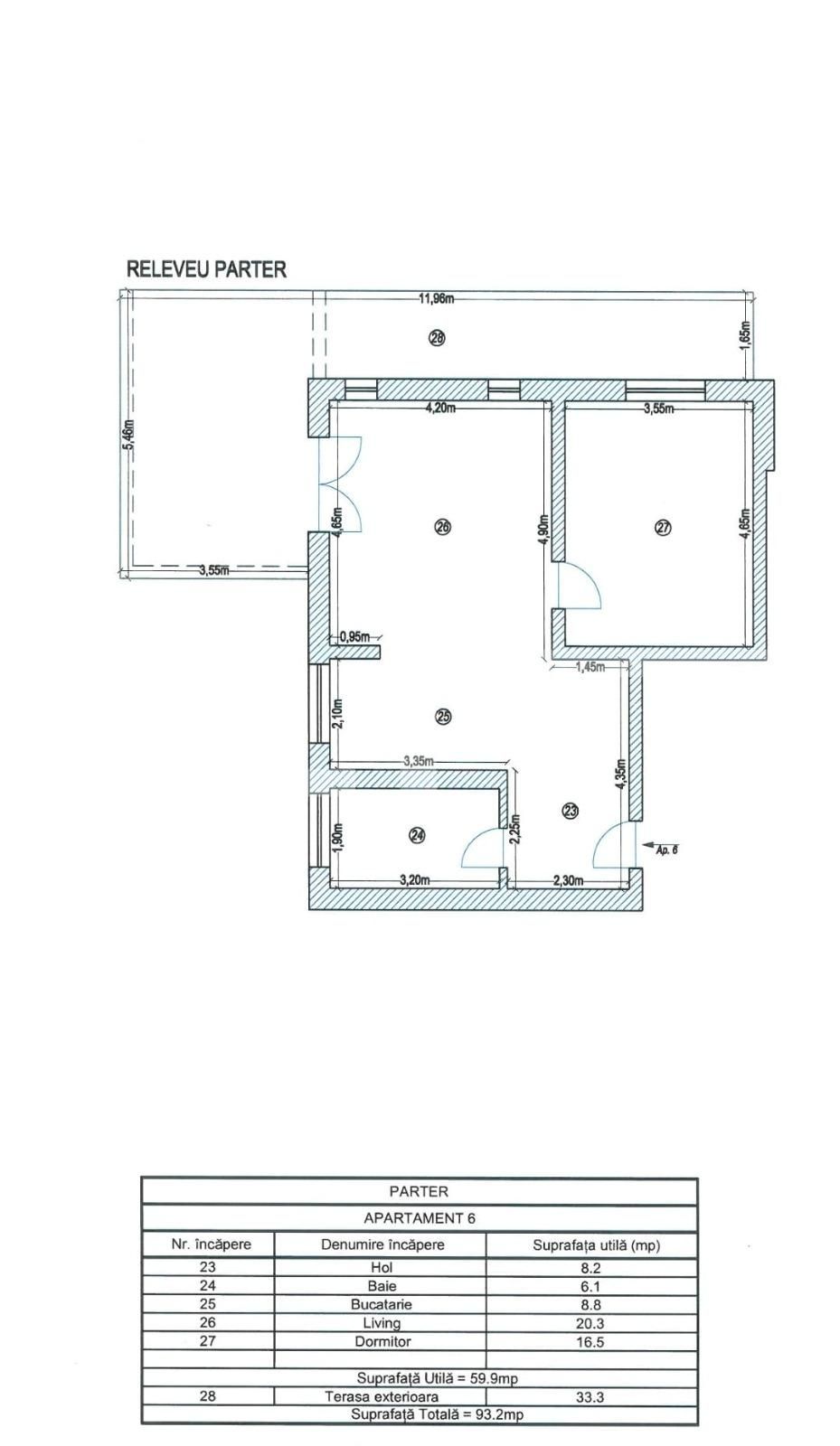
Suprafață utilă: 60 mp

Nr. băi: 1

Etaj: Parter /2

Locuri de parcare: 2

Boxă la subsol: Nu

Tip compartimentare: Semidecomandat

Vechime apartament: Nou

Tip imobil: Bloc de apartamente

Dotări: Nemobilat

Anul construcției: 2023

Tip finisaj: Finisat

Materiale construcție: Beton, Cărămidă

Modalitate vânzare: Credit bancar, Cash

Blitz va propune spre vanzare un apartament cu 2 camere, openspace, modern, situat in localitatea Dumbravita, zona Central, aflat la Parter intr-un bloc cu regim de inaltime pe Parter + 1 Etaj + Mansarda. Anul constructiei 2023, structura beton, material zidarie caramida termobloc. Suprafata utila de 60 mp + terasa de 33 mp. Zona foarte linistita, in apropiere de Scoala, Primarie, Parc central.Apartamentul se vinde la cheie cu posibilitate de alegere finisaje in limita unui buget.
Incalzirea se realizeaza prin intermediul centralei proprii cu incalzire in pardoseala. Apartamentul dispune de 2 locuri de parcare.
Pretul este de 104000+ 9% TVA

Agent

Gheorghe Maniu

Broker Partner

Ideal pentru o familie sau un cuplu

Link-uri utile

Linkuri rapide filtrate după cele mai căutate zone și numărul de camere

black friday
Sună acum
Inchide
X

Te interesează apartamente de vânzare în Timișoara?

Lasă-ne datele tale de contact şi te vom consilia în alegerea proprietăţii potrivite!

Inchide
X

Te interesează apartamente de vânzare în Timișoara?

Lasă-ne datele tale de contact şi te vom consilia în alegerea proprietăţii potrivite!