blitz logo
favorites

black arrow right Oferta accesata nu mai este disponibilă.

Poți vedea oferte din aceeași categorie sau poți contacta agentul pentru o oferta personalizată.

VEZI OFERTE SIMILARE

LINK-URI UTILE

Linkuri rapide filtrate după cele mai căutate zone și numărul de camere

Apartamente de vânzareApartamente de vânzare Complex StudentescApartamente de vânzare 2 camereApartamente de vânzare Complex Studentesc 2 camere
Apartament de vânzare 2 camere Complex Studentesc - 164674AV | BLITZ Timișoara | Poza1
Apartament de vânzare 2 camere Complex Studentesc - 164674AV | BLITZ Timișoara | Poza1
Apartament de vânzare 2 camere Complex Studentesc - 164674AV | BLITZ Timișoara | Poza1

Apartament de vanzare cu 2 camere, 38mp + balcon, Zona Complex

ID: BLITZ 164674AV

Cartier: Complex Studentesc

Preț/mp: 1.711 €

Actualizat: 26.06.2025

Rata lunară: 330,90

Agent

Larisa Giurca

Expert Broker Partner

Te interesează ofertă? Programează o vizionare!
Vă rugăm să completați chenarul cu informațiile cerute pentru a continua

65.00067.000 € (- 2.000 € )

Trimite ofertă de preț

Acest anunț este verificat de către agent

  €

Nr. camere: 2

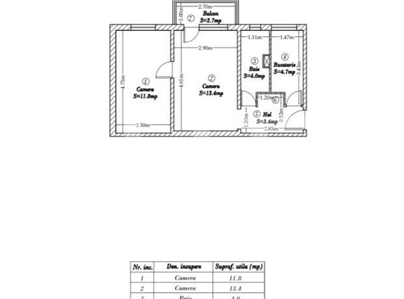
Suprafață utilă: 38 mp

Nr. băi: 1

Nr. balcoane: 1

Etaj: 3 /4

Tip compartimentare: Semidecomandat

Vechime apartament: Nou

Tip imobil: Bloc de apartamente

Dotări: Nemobilat

Anul construcției: Inainte de 1990

Tip finisaj: Renovabil

Blitz va propune spre vanzare un apartament cu 2 camere intr-o locatie cu potential ideal pentru investitie. Acesta are o suprafata utila de 38 mp + un balcon. Apartamentul este situat la etajul 3 intr-un imobil in regim P+4E. Imobilul a fost anvelopat termic recent Apartamentul se preda gol, nemobilat si necesita o usoara renovare. Acesta reprezinta o oportunitate ideala datorita locatiei extrem de favorabila. Va invitam cu drag la o vizionare.
Cod ofertă / ID BLITZ: P138776

Agent

Larisa Giurca

Expert Broker Partner

Link-uri utile

Linkuri rapide filtrate după cele mai căutate zone și numărul de camere

black friday
Sună acum
Inchide
X

Te interesează apartamente de vânzare în Timișoara?

Lasă-ne datele tale de contact şi te vom consilia în alegerea proprietăţii potrivite!

Inchide
X

Te interesează apartamente de vânzare în Timișoara?

Lasă-ne datele tale de contact şi te vom consilia în alegerea proprietăţii potrivite!