blitz logo
favorites

black arrow right Oferta accesata nu mai este disponibilă.

Poți vedea oferte din aceeași categorie sau poți contacta agentul pentru o oferta personalizată.

VEZI OFERTE SIMILARE

LINK-URI UTILE

Linkuri rapide filtrate după cele mai căutate zone și numărul de camere

Spații comerciale de închiriatSpații comerciale de închiriat Central
Exclusivitate
Spațiu comercial de închiriat Central - 178871SIC | BLITZ Târgoviște | Poza1
Spațiu comercial de închiriat Central - 178871SIC | BLITZ Târgoviște | Poza1
Spațiu comercial de închiriat Central - 178871SIC | BLITZ Târgoviște | Poza1

Spațiu comercial, 62 mp, zona Ultracentral

ID: BLITZ 178871SIC

Cartier: Central

Actualizat: 12.02.2026

Agent

Ionel Vaidacuteanu

Expert Broker Partner

Te interesează ofertă? Programează o vizionare!
Vă rugăm să completați chenarul cu informațiile cerute pentru a continua

890900€(-10€)

Trimite ofertă de preț

Acest anunț este verificat de către agent

  €

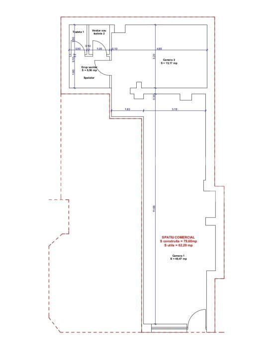
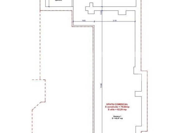
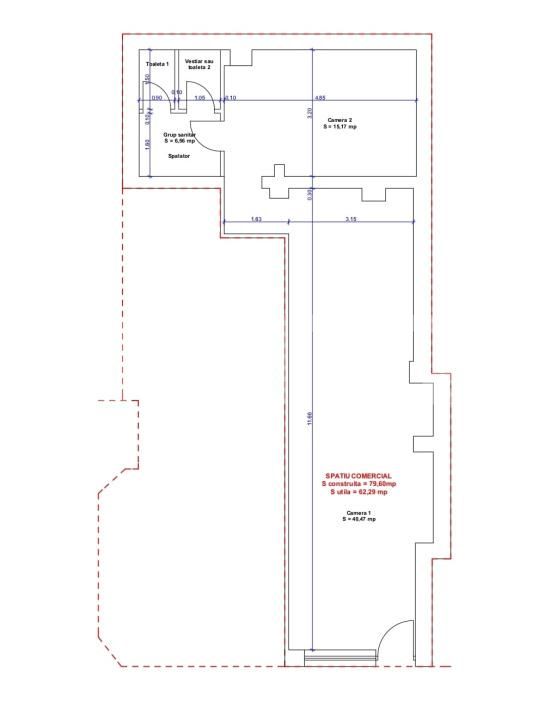
Suprafață: 62 mp

Tip spațiu: Parter de bloc

Tip finisaj: Finisat

Vechime spațiu: Nou

Disponibilitate: Azi

Blitz vă oferă un spațiu comercial aflat într-o locație premium, la parterul unui bloc de apartamente, cu trafic pietonal intens și vizibilitate excelentă.

Suprafață utilă: 62 mp (80 mp construiți)
Compartimentare: 2 camere semidecomandate + 2 băi
Dotări: centrală termică, geamuri termopan, aer condiționat
Parcare: disponibilă în zonă
Stare: nemobilat, ușor de amenajat în funcție de activitate

Avantaje și beneficii:

Poziționare ultracentrală, aproape de instituții, bănci, restaurante și zone de interes
Acces rapid la mijloace de transport în comun
Spațiu versatil, potrivit pentru birouri, cabinet medical, salon, showroom sau alte activități comerciale
Zonă dinamică, cu potențial de atragere a clienților

Contactați-ne pentru detalii și vizionare!
Cod ofertă / ID BLITZ: P154428

Agent

Ionel Vaidacuteanu

Expert Broker Partner

Link-uri utile

Linkuri rapide filtrate după cele mai căutate zone și numărul de camere

black friday
Sună acum
Inchide
X

Te interesează spații comerciale de închiriat în Târgoviște?

Lasă-ne datele tale de contact şi te vom consilia în alegerea proprietăţii potrivite!

Inchide
X

Te interesează spații comerciale de închiriat în Târgoviște?

Lasă-ne datele tale de contact şi te vom consilia în alegerea proprietăţii potrivite!