blitz logo
favorites

black arrow right Oferta accesata nu mai este disponibilă.

Poți vedea oferte din aceeași categorie sau poți contacta agentul pentru o oferta personalizată.

VEZI OFERTE SIMILARE

LINK-URI UTILE

Linkuri rapide filtrate după cele mai căutate zone și numărul de camere

Case de vânzareCase de vânzare Exterior Est
Casa de vânzare 2 camere Exterior Est - 152251CV | BLITZ Sibiu | Poza1
Casa de vânzare 2 camere Exterior Est - 152251CV | BLITZ Sibiu | Poza2
Casa de vânzare 2 camere Exterior Est - 152251CV | BLITZ Sibiu | Poza1
Casa de vânzare 2 camere Exterior Est - 152251CV | BLITZ Sibiu | Poza2
Casa de vânzare 2 camere Exterior Est - 152251CV | BLITZ Sibiu | Poza1
Casa de vânzare 2 camere Exterior Est - 152251CV | BLITZ Sibiu | Poza2

Casa 2 camere singur in curte, oras TALMACIU

ID: BLITZ 152251CV

Cartier: Exterior Est

Preț/mp: 865 €

Actualizat: 30.10.2024

Rata lunară: 229,08

Agent

    Te interesează ofertă? Programează o vizionare!
    Vă rugăm să completați chenarul cu informațiile cerute pentru a continua

    45.000

    Trimite ofertă de preț

    Acest anunț este verificat de către agent

      €

    Suprafață casă: 52 mp

    Teren: 80 mp

    Număr de camere: 2

    Nr. bucătării: 1

    Nr. băi: 1

    Locuri de parcare: 1

    Vechime casă: Nouă

    Dotări: Parțial mobilat/utilat

    Tip finisaj: Finisat

    Tip acoperiș: Țiglă

    An construcție: Inainte de 1990

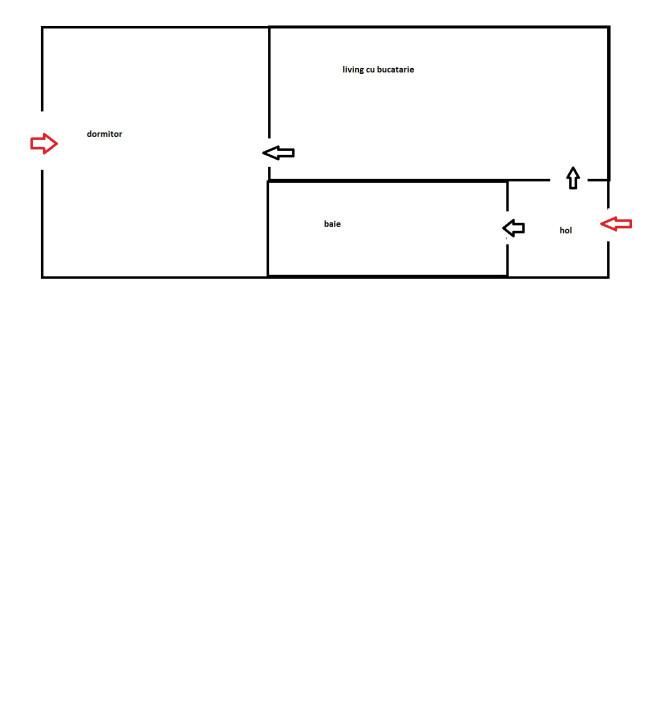
    Oferim spre vanzare CASA INSIRUITA in Talmaciu
    Locuinta este compusa din: LIVING cu BUCATARIE open space, DORMITOR cu iesire in curtea privata, BAIE si HOL.
    Casa dispune de geamuri de termopan, usa de termopan la intrare si la curtea din spate , usi interioare din MDF.
    Exista o curte privata atat in fata casei cat si una in spatele casei.
    OPORTUNITATE de investitie, LOCUINTA este inchiriata.
    Cod ofertă / ID BLITZ: P127175

    Agent

    Link-uri utile

    Linkuri rapide filtrate după cele mai căutate zone și numărul de camere

    black friday
    Sună acumScrie mesaj
    Inchide
    X

    Te interesează case de vânzare în Sibiu?

    Lasă-ne datele tale de contact şi te vom consilia în alegerea proprietăţii potrivite!