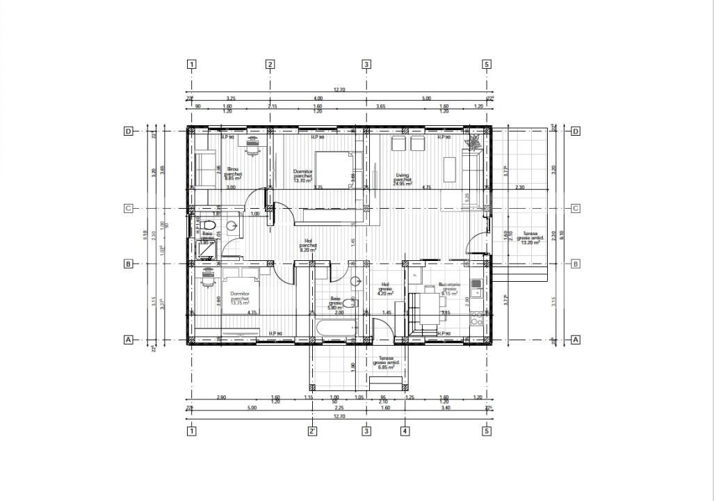
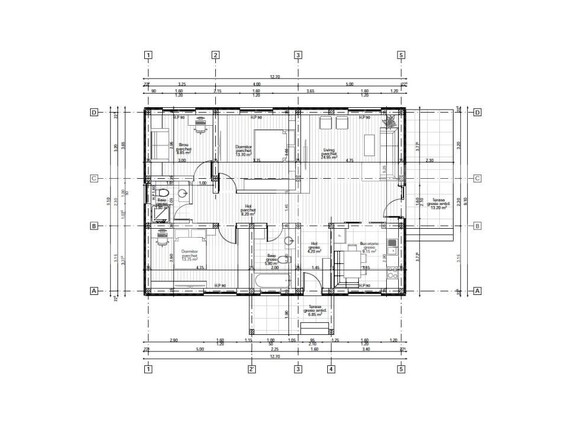
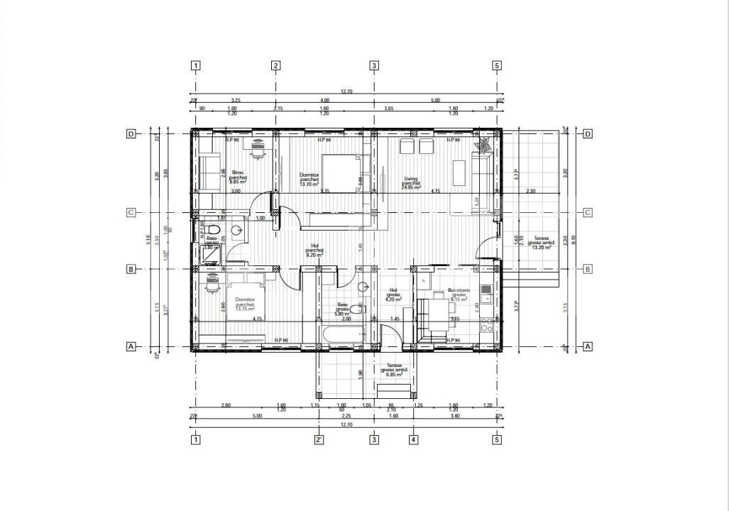
Casă 5 camere | 180 mp utili | Teren 530 mp | Dancu
Anunță-mă când scade prețul
Trimite oferta de preț
Suprafață casă: 100 mp
Teren: 500 mp
Număr de camere: 4
Nr. bucătării: 1
Nr. băi: 2
Locuri de parcare: 2
Vechime casă: În construcție
Dotări: Nemobilat
Tip finisaj: Finisat
Tip acoperiș: Tabla
An construcție: Inainte de 1990
Evoluție Indice Blitz:
Casă premium townhouse în stil englezesc | 3 dormitoare |Încălzire în pardoseala
Casă premium 4 camere |Cartier rezidențial exclusivist | 00 mp teren | Vorovești
Link-uri utile
Linkuri rapide filtrate după cele mai căutate zone și numărul de camere

