blitz logo
favorites
Teren de vânzare Ghercesti - 181951TV | BLITZ Craiova | Poza1
Teren de vânzare Ghercesti - 181951TV | BLITZ Craiova | Poza1
Teren de vânzare Ghercesti - 181951TV | BLITZ Craiova | Poza1

Teren industrial – 9.640 mp, Craiova, în spatele Aeroportului

ID: BLITZ 181951TV

Cartier: Ghercesti

Preț/mp: 70 €

Actualizat: 14.04.2026

Agent

Catalin Urziceanu

Broker Partner

Te interesează ofertă? Programează o vizionare!
Vă rugăm să completați chenarul cu informațiile cerute pentru a continua

674.800

Trimite ofertă de preț

Acest anunț este verificat de către agent

  €

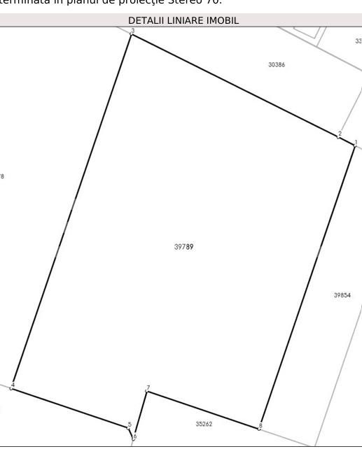
Suprafață: 9640 mp

Blitz va propune o oportunitate unică de investiție în una dintre cele mai dinamice zone de dezvoltare din Craiova.
Se oferă spre vânzare un teren industrial de 9.640 mp, situat în spatele Aeroportului din Craiova, cu acces direct la drum asfaltat și toate utilitățile disponibile – apă, curent, gaze și internet.

Suprafață totală: 9.640 mp
Deschidere la drum: 40 metri
Adâncime: 101 metri
Regim de folosință: teren industrial
Acces facil la infrastructura principală a orașului și la artere de transport importante
Teren parcelabil – posibilitatea de împărțire în loturi de minimum 2.000 mp (eligibile pentru obținerea autorizațiilor)

(aprox. 70 €/mp – o valoare excelentă raportată la potențialul zonei și utilitățile existente)

Avantaje:
-Poziționare strategică, ideală pentru dezvoltare industrială, logistică, depozitare sau producție
-Acces rapid către Aeroportul Craiova și centura orașului
-Zonă în continuă expansiune, cu potențial major de apreciere a valorii în următorii ani

Contactează-ne pentru mai multe detalii sau pentru o vizionare la fața locului!
Profită de această oportunitate reală de investiție într-o zonă industrială aflată în plină dezvoltare!
Cod ofertă / ID BLITZ: P157733

Agent

Catalin Urziceanu

Broker Partner

Evoluție Indice Blitz:

  • Cartier: Ghercesti

Link-uri utile

Linkuri rapide filtrate după cele mai căutate zone și numărul de camere

black friday
Sună acum
Inchide
X

Te interesează terenuri de vânzare în Craiova?

Lasă-ne datele tale de contact şi te vom consilia în alegerea proprietăţii potrivite!

Inchide
X

Te interesează terenuri de vânzare în Craiova?

Lasă-ne datele tale de contact şi te vom consilia în alegerea proprietăţii potrivite!