blitz logo
favorites

black arrow right Oferta accesata nu mai este disponibilă.

Poți vedea oferte din aceeași categorie sau poți contacta agentul pentru o oferta personalizată.

VEZI OFERTE SIMILARE

Oferte similare

LINK-URI UTILE

Linkuri rapide filtrate după cele mai căutate zone și numărul de camere

Apartamente de vânzareApartamente de vânzare LapusApartamente de vânzare 4 camereApartamente de vânzare Lapus 4 camere
Apartament de vânzare 4 camere Lapus - 100527AV | BLITZ Craiova | Poza1
Apartament de vânzare 4 camere Lapus - 100527AV | BLITZ Craiova | Poza1
Apartament de vânzare 4 camere Lapus - 100527AV | BLITZ Craiova | Poza1

Apartament 4 camere, decomandat, zona Intim, Lapus

ID: BLITZ 100527AV

Cartier: Lapus

Preț/mp: 1.345 €

Actualizat: 24.10.2023

Rata lunară: 559,98

Agent

Iulian Cocosila

Specialist Broker Partner

Acest anunț este verificat de către agent

Te interesează ofertă? Programează o vizionare!
Vă rugăm să completați chenarul cu informațiile cerute pentru a continua

110.000120.000 € (- 10.000 € )

Trimite ofertă de preț

Acest anunț este verificat de către agent

  €

Nr. camere: 4

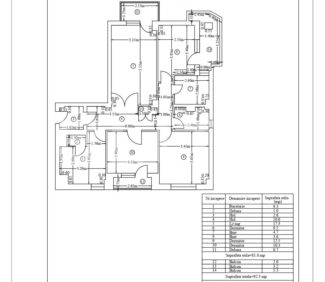
Suprafață utilă: 81.8 mp

Nr. băi: 2

Nr. balcoane: 3

Etaj: 7 /8

Boxă la subsol: Nu

Tip compartimentare: Decomandat

Vechime apartament: Vechi

Tip imobil: Bloc de apartamente

Dotări: Nemobilat

Anul construcției: Inainte de 1990

Tip finisaj: Renovabil

Materiale construcție: Beton, BCA

Modalitate vânzare: Cash

Blitz va propune spre vanzare un apartament cu 4 camere, decomandat, trilateral, in Lapus. Este situat la etajul 7 intr-un imobil cu 8 niveluri.
Avand o suprafata utila de 81,8 mp, este dispus astfel: sufragerie, 3 dormitoare, bucatarie, 2 bai si 3 balcoane cu o suprafata totala de 10.5 mp, dintre care 2 inchise.
Apartamentul necesita renovare, dispune de usa metalica la intrare, teava de gaze pe casa scarii, lift nou, cu cartela.
Este situat in zona Restaurant Intim, aproape de magazine, farmacii, scoli, gradinite, mijloace de transport in comun, Electroputere Mall.

Agent

Iulian Cocosila

Specialist Broker Partner

Link-uri utile

Linkuri rapide filtrate după cele mai căutate zone și numărul de camere

black friday
Sună acumScrie mesaj
Inchide
X

Te interesează apartamente de vânzare în Craiova?

Lasă-ne datele tale de contact şi te vom consilia în alegerea proprietăţii potrivite!