Apartament 3 camere decomandat, 76.76 mp, bloc nou, etaj 2/5 - zona Centrala
Oferta accesata nu mai este disponibilă.
Poți vedea oferte din aceeași categorie sau poți contacta agentul pentru o oferta personalizată.
VEZI OFERTE SIMILARE
Apartament 3 camere decomandat, 76.76 mp, bloc nou, etaj 2/5 - zona Centrala

Apartament tip penthouse, 3 camere, 103 mp, 3 locuri de parcare, zona 1 Mai
Linkuri rapide filtrate după cele mai căutate zone și numărul de camere
Anunță-mă când scade prețul
Trimite oferta de preț
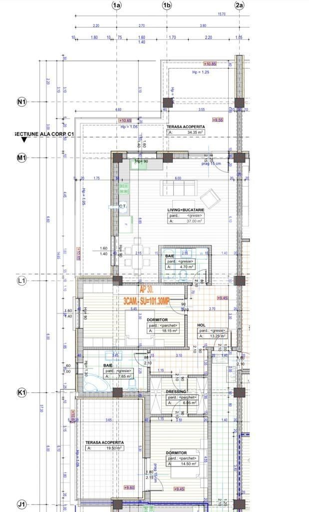
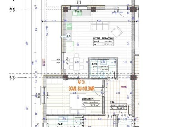
Nr. camere: 3
Suprafață utilă: 101 mp
Nr. băi: 2
Nr. balcoane: 2
Etaj: 3 /3
Locuri de parcare: 1
Boxă la subsol: Nu
Tip compartimentare: Decomandat
Vechime apartament: În construcție
Tip imobil: Bloc de apartamente
Dotări: Modern/lux
Anul construcției: 2023
Tip finisaj: Modern/lux
Materiale construcție: Beton, Cărămidă
Modalitate vânzare: Credit bancar, Cash
Link-uri utile
Linkuri rapide filtrate după cele mai căutate zone și numărul de camere