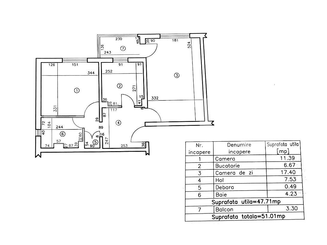
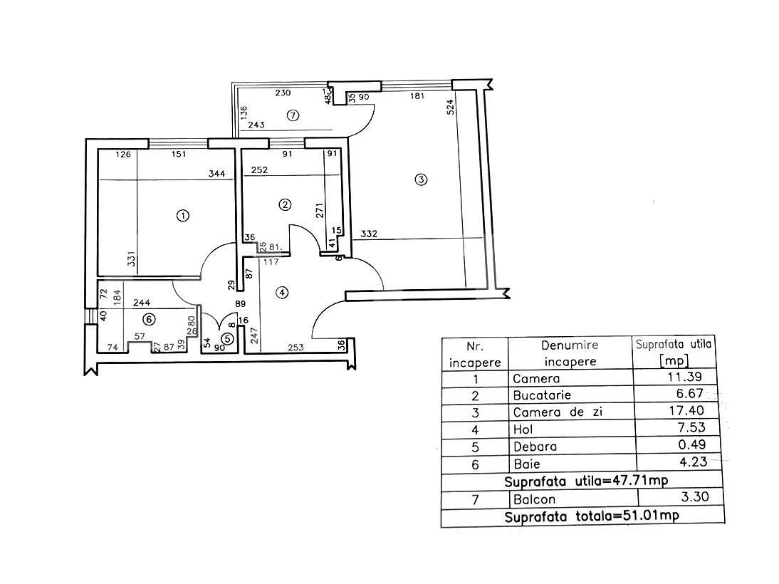
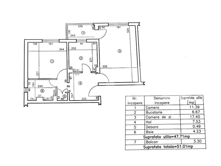
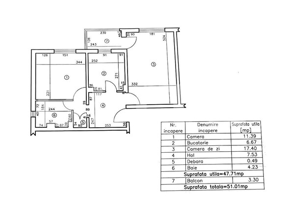
Apartament 2 camere, 50 mp, zona Calea Bucurști-Lăpuș
Oferta accesata nu mai este disponibilă.
Poți vedea oferte din aceeași categorie sau poți contacta agentul pentru o oferta personalizată.
VEZI OFERTE SIMILARELinkuri rapide filtrate după cele mai căutate zone și numărul de camere
Anunță-mă când scade prețul
Trimite oferta de preț
Nr. camere: 2
Suprafață utilă: 47.71 mp
Nr. băi: 1
Nr. balcoane: 1
Etaj: 1 /4
Locuri de parcare: 1 , In zona
Boxă la subsol: Nu
Tip compartimentare: Decomandat
Vechime apartament: Vechi
Tip imobil: Bloc de apartamente
Dotări: Modern/lux
Anul construcției: Inainte de 1990
Tip finisaj: Modern/lux
Materiale construcție: Beton
Modalitate vânzare: Credit bancar, Cash
Link-uri utile
Linkuri rapide filtrate după cele mai căutate zone și numărul de camere