blitz logo
favorites

black arrow right Oferta accesata nu mai este disponibilă.

Poți vedea oferte din aceeași categorie sau poți contacta agentul pentru o oferta personalizată.

VEZI OFERTE SIMILARE

LINK-URI UTILE

Linkuri rapide filtrate după cele mai căutate zone și numărul de camere

Terenuri de vânzareTerenuri de vânzare FloreştiTerenuri de vânzare Floreşti, zona Teilor
Teren de vânzare Floreşti - 59508TV | BLITZ Cluj-Napoca | Poza1
Teren de vânzare Floreşti - 59508TV | BLITZ Cluj-Napoca | Poza1
Teren de vânzare Floreşti - 59508TV | BLITZ Cluj-Napoca | Poza1

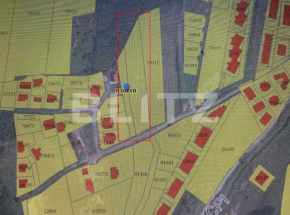
Teren intravilan de vanzare, 3850 mp, priveliste!

ID: BLITZ 59508TV

Cartier: Floreşti

Preț/mp: 100 €

Actualizat: 21.10.2021

Zona: Teilor
Agent

    Acest anunț este verificat de către agent

    Te interesează ofertă? Programează o vizionare!
    Vă rugăm să completați chenarul cu informațiile cerute pentru a continua

    385.000

    Trimite ofertă de preț

    Acest anunț este verificat de către agent

      €

    Suprafață: 3850 mp

    Front: peste 50ml

    Utilități: Utilități în zonă

    Destinație: Casă/Duplex

    Acte/Avize: Carte funciară

    Alte criterii: Drum asfaltat

    BLITZ ofera spre vanzare teren intraviln situat intr-o zona nou dezvoltata din Floresti, de case-vile. Terenul dispune de o suprafata de 3850 mp, cu 2 fronturi stradale de 27 ml si 42 ml. Utilitati in zona. Accesul la teren se face pe un drum public, asfaltat, cu o latime de 6 mp.

    Agent

    Teren pretabil pentru un ansamblu de duplexuri.

    Link-uri utile

    Linkuri rapide filtrate după cele mai căutate zone și numărul de camere

    black friday
    Sună acum
    Inchide
    X

    Te interesează terenuri de vânzare în Cluj-Napoca?

    Lasă-ne datele tale de contact şi te vom consilia în alegerea proprietăţii potrivite!

    Inchide
    X

    Te interesează terenuri de vânzare în Cluj-Napoca?

    Lasă-ne datele tale de contact şi te vom consilia în alegerea proprietăţii potrivite!