Spatiu comercial de inchiriat, 285 mp, zona Calvaria
Oferta accesata nu mai este disponibilă.
Poți vedea oferte din aceeași categorie sau poți contacta agentul pentru o oferta personalizată.
VEZI OFERTE SIMILARE
Spatiu pe 3 nivele pentru clinica stoma ,activitati medicale sau alte activitati

Spatiu cu vitrina generoasa, 4 camere, 170 mp, zona buna cu trafic, Marasti
Linkuri rapide filtrate după cele mai căutate zone și numărul de camere
Anunță-mă când scade prețul
Trimite oferta de preț
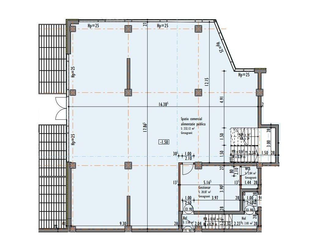
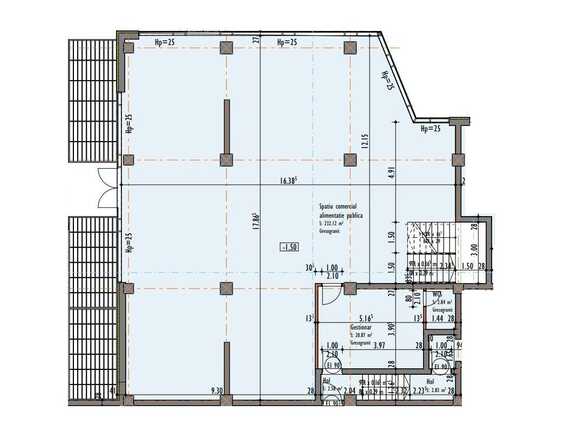
Suprafață: 255 mp
Tip spațiu: Parter de bloc
Destinație: Magazin, Bistro, Showroom, Cafe-bar, Salon, Sediu Bancă
Tip finisaj: Semifinisat
Vechime spațiu: Nou
Alte criterii: Trafic auto, Vad pietonal, Vitrina, Vizibilitate crescută, Trifazic, Posibilitate compartimentare, Acces aprovizionare, Investiție
Disponibilitate: Mai mult de 3 luni
Link-uri utile
Linkuri rapide filtrate după cele mai căutate zone și numărul de camere