blitz logo
favorites

black arrow right Oferta accesata nu mai este disponibilă.

Poți vedea oferte din aceeași categorie sau poți contacta agentul pentru o oferta personalizată.

VEZI OFERTE SIMILARE

LINK-URI UTILE

Linkuri rapide filtrate după cele mai căutate zone și numărul de camere

Spații comerciale de închiriatSpații comerciale de închiriat Marasti
Spațiu comercial de închiriat Marasti - 22064SIC | BLITZ Cluj-Napoca | Poza1
Spațiu comercial de închiriat Marasti - 22064SIC | BLITZ Cluj-Napoca | Poza1
Spațiu comercial de închiriat Marasti - 22064SIC | BLITZ Cluj-Napoca | Poza1

Spatiu comercial finisat, 124 mp, zona Expo Transilvania, vitrina 6 m

ID: BLITZ 22064SIC

Cartier: Marasti

Actualizat: 11.05.2016

Agent

Paul Maluczan

Expert Broker Partner

Acest anunț este verificat de către agent

Te interesează ofertă? Programează o vizionare!
Vă rugăm să completați chenarul cu informațiile cerute pentru a continua

1.364

Trimite ofertă de preț

Acest anunț este verificat de către agent

  €

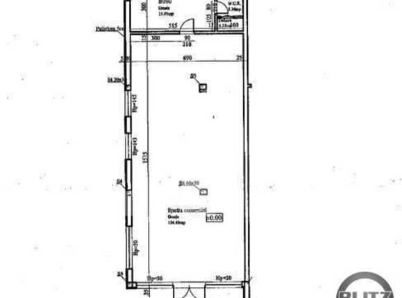
Suprafață: 124 mp

Tip spațiu: Parter de bloc

Tip finisaj: Finisat

Disponibilitate: Azi

Parerea agentului: Acest spatiu este ideal pentru orice tip de activitate comerciala deoarece benficiaza de acces direct din strada si vitrina ampla.
Spatiu comercial de inchiriat, situat in cartierul Marasti, in zona Expo Transilvania. Este situat la parterul unei case/vile, constructie 2007, cu acces din strada si are o suprafata totala de 124 mp. Benficiaza de un open space mare si un grup sanitar. Finisajele sunt noi si moderne: tavan fals, gresie, faianta, are geamuri si usa termopan cu tamplarie din pvc, iar utilitatile sunt contorizate separat. Dispune de o vitrina ampla la strada si este pretabil pentru orice tip de activitatate comerciala.
pretinchiriere: 1364
monedainchiriere: EUR
pretinchiriereunitar: 11
monedainchiriereunitar: EUR

Agent

Paul Maluczan

Expert Broker Partner

Link-uri utile

Linkuri rapide filtrate după cele mai căutate zone și numărul de camere

black friday
Sună acum
Inchide
X

Te interesează spații comerciale de închiriat în Cluj-Napoca?

Lasă-ne datele tale de contact şi te vom consilia în alegerea proprietăţii potrivite!

Inchide
X

Te interesează spații comerciale de închiriat în Cluj-Napoca?

Lasă-ne datele tale de contact şi te vom consilia în alegerea proprietăţii potrivite!