blitz logo
favorites

black arrow right Oferta accesata nu mai este disponibilă.

Poți vedea oferte din aceeași categorie sau poți contacta agentul pentru o oferta personalizată.

VEZI OFERTE SIMILARE

LINK-URI UTILE

Linkuri rapide filtrate după cele mai căutate zone și numărul de camere

Spații comerciale de închiriatSpații comerciale de închiriat SemicentralSpații comerciale de închiriat Semicentral, zona P-ta Abator
Spațiu comercial de închiriat Semicentral - 112056SIC | BLITZ Cluj-Napoca | Poza1
Spațiu comercial de închiriat Semicentral - 112056SIC | BLITZ Cluj-Napoca | Poza1
Spațiu comercial de închiriat Semicentral - 112056SIC | BLITZ Cluj-Napoca | Poza1

Spatiu comercial nou, 95 mp, front stradal, parcare, Piata Abator

ID: BLITZ 112056SIC

Cartier: Semicentral

Actualizat: 11.09.2023

Zona: P-ta Abator
Agent

    Acest anunț este verificat de către agent

    Te interesează ofertă? Programează o vizionare!
    Vă rugăm să completați chenarul cu informațiile cerute pentru a continua

    1.500

    Trimite ofertă de preț

    Acest anunț este verificat de către agent

      €

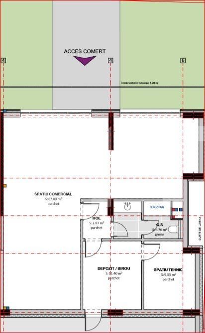
    Suprafață: 95 mp

    Tip spațiu: Parter de bloc

    Destinație: Magazin, Bistro, Showroom, Restaurant, Cafe-bar, Fast Food, Salon, Sediu Bancă

    Tip finisaj: Semifinisat

    Vechime spațiu: Nou

    Alte criterii: Trafic auto, Vad pietonal, Vitrina, Vizibilitate crescută, Trifazic, Posibilitate compartimentare, Acces aprovizionare

    Locuri de parcare: 1

    Disponibilitate: Azi

    Blitz intermediaza spre inchiriere spatiu comercial cu suprafata totala de 95mp in zona Piata Abator. Spatiul beneficiaza de doua accese, fiind pretabil pentru orce tip de activitate. Loc de parcare in curtea interioara. In momentul de fata spatiul se afla la stadiul de semi-finisat. Desfasurarea spatiului este formata din sala de vanzare open-space, spatiu tehnic, birou si grup sanitar. Pretul de inchiriere este +tva.

    Agent

    Spatiu cu vizibilitate, ideal pentru orce tip de activitate comerciala

    Link-uri utile

    Linkuri rapide filtrate după cele mai căutate zone și numărul de camere

    black friday
    Sună acum
    Inchide
    X

    Te interesează spații comerciale de închiriat în Cluj-Napoca?

    Lasă-ne datele tale de contact şi te vom consilia în alegerea proprietăţii potrivite!

    Inchide
    X

    Te interesează spații comerciale de închiriat în Cluj-Napoca?

    Lasă-ne datele tale de contact şi te vom consilia în alegerea proprietăţii potrivite!