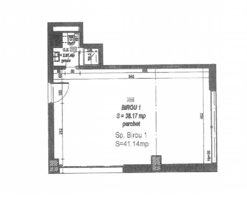
Spațiu de birou, 55 mp, zona Piața 1 Mai
Oferta accesata nu mai este disponibilă.
Poți vedea oferte din aceeași categorie sau poți contacta agentul pentru o oferta personalizată.
VEZI OFERTE SIMILARELinkuri rapide filtrate după cele mai căutate zone și numărul de camere
Anunță-mă când scade prețul
Trimite oferta de preț
Suprafață: 40 mp
Tip spațiu: În apartament
Vechime spațiu: Vechi
Tip finisaj: Finisat
Dotări: Nemobilat
Destinație: IT/Software, Sediu firmă, Cabinet
Disponibilitate: Azi mp
Link-uri utile
Linkuri rapide filtrate după cele mai căutate zone și numărul de camere