Apartament 2 camere, decomandat, 48 mp utili, parcare, zona Florilor
Oferta accesata nu mai este disponibilă.
Poți vedea oferte din aceeași categorie sau poți contacta agentul pentru o oferta personalizată.
VEZI OFERTE SIMILARE
Apartament luminos, modern 2 camere, 42mp, balcon generos, parcare, zona Cetatii

Apartament 2 camere, 50 mp, mobilat modern, etaj 1, parcare, Eroilor central
Linkuri rapide filtrate după cele mai căutate zone și numărul de camere
ID: BLITZ 69704AV
Cartier: GheorgheniPreț/mp: 2.513 €
Actualizat: 22.03.2022
Zona: Iulius MallRata lunară: 503,98 €
Anunță-mă când scade prețul
Trimite oferta de preț
Nr. camere: Garsonieră
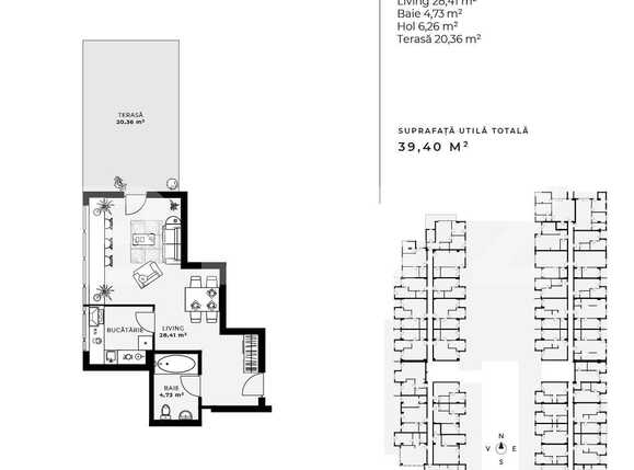
Suprafață utilă: 39.4 mp
Nr. băi: 1
Etaj: 1 /7
Locuri de parcare: 1
Boxă la subsol: Nu
Tip compartimentare: Semidecomandat
Vechime apartament: În construcție
Tip imobil: Bloc de apartamente
Dotări: Nemobilat
Anul construcției: 2022
Tip finisaj: Semifinisat
Materiale construcție: Cărămidă
Modalitate vânzare: Credit bancar, Cash
Link-uri utile
Linkuri rapide filtrate după cele mai căutate zone și numărul de camere