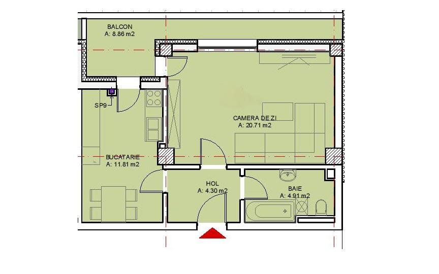
Oportunitate de investitie! apartament cu 2 camere, 45 mp, zona Vivo
Oferta accesata nu mai este disponibilă.
Poți vedea oferte din aceeași categorie sau poți contacta agentul pentru o oferta personalizată.
VEZI OFERTE SIMILARE
COMISION 0 !! Apartamente 1-3 camere, 37-60 mp, intermediar, garaj, zona Terra

COMISION 0 !! Apartamente 1-3 camere, 37-60 mp, intermediar, garaj, zona Terra
Linkuri rapide filtrate după cele mai căutate zone și numărul de camere
ID: BLITZ 28658AV
Cartier: GheorgheniPreț/mp: 1.439 €
Actualizat: 10.10.2018
Zona: Iulius MallRata lunară: 300,30 €
Anunță-mă când scade prețul
Trimite oferta de preț
Nr. camere: Garsonieră
Suprafață utilă: 41 mp
Nr. băi: 1
Nr. balcoane: 1
Etaj: 3 /7
Boxă la subsol: Nu
Tip compartimentare: Decomandat
Vechime apartament: În construcție
Tip imobil: Bloc de apartamente
Dotări: Nemobilat
Anul construcției: 2018
Tip finisaj: Semifinisat
Materiale construcție: Cărămidă
Modalitate vânzare: Credit bancar, Cash
Link-uri utile
Linkuri rapide filtrate după cele mai căutate zone și numărul de camere