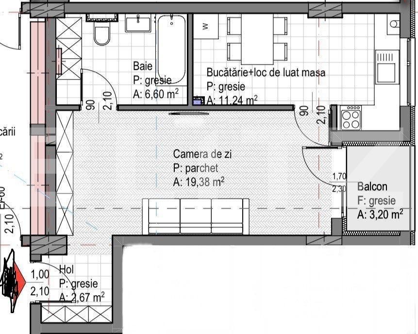
Apartament cu 2 camere, 41 mp, parcare, bloc cu lift, balcon, zona Urusagului
Oferta accesata nu mai este disponibilă.
Poți vedea oferte din aceeași categorie sau poți contacta agentul pentru o oferta personalizată.
VEZI OFERTE SIMILARE
Apartament cu 2 camere, 41 mp, parcare, bloc cu lift, balcon, zona Urusagului

Apartament 2 camere, 51 mp, ultrafinisat, garaj subteran, bloc nou, Eroilor
Linkuri rapide filtrate după cele mai căutate zone și numărul de camere
Anunță-mă când scade prețul
Trimite oferta de preț
Nr. camere: Garsonieră
Suprafață utilă: 40 mp
Nr. băi: 1
Nr. balcoane: 1
Etaj: 4 /7
Locuri de parcare: 1
Tip compartimentare: Semidecomandat
Vechime apartament: Nou
Tip imobil: Bloc de apartamente
Dotări: Nemobilat
Anul construcției: 2024
Tip finisaj: Semifinisat
Link-uri utile
Linkuri rapide filtrate după cele mai căutate zone și numărul de camere