Garsoniera 22.68 mp, zona Blocuri - Campia Turzii
Oferta accesata nu mai este disponibilă.
Poți vedea oferte din aceeași categorie sau poți contacta agentul pentru o oferta personalizată.
VEZI OFERTE SIMILARE
Oportunitate: Apartament in inima Clujului | Cladire istorica | Potențial mare
Linkuri rapide filtrate după cele mai căutate zone și numărul de camere
ID: BLITZ 50039AV
Cartier: FloreştiPreț/mp: 800 €
Actualizat: 01.09.2020
Zona: CetatiiRata lunară: 166,65 €
Anunță-mă când scade prețul
Trimite oferta de preț
Nr. camere: Garsonieră
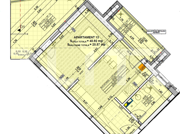
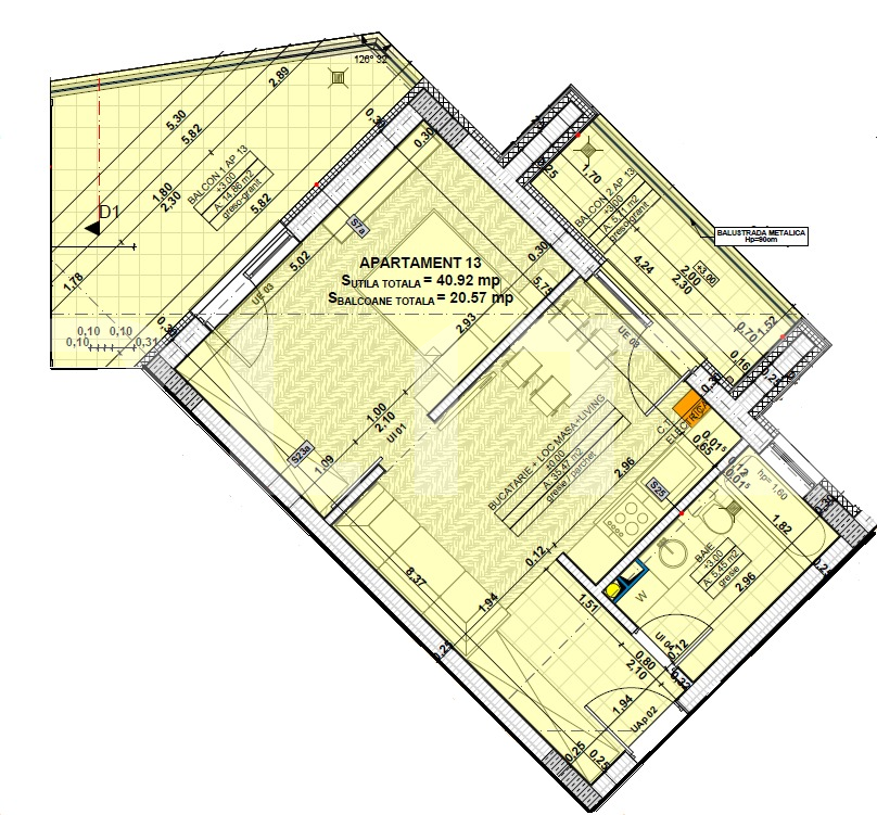
Suprafață utilă: 40.92 mp
Nr. băi: 1
Nr. balcoane: 2
Etaj: 1 /3
Boxă la subsol: Nu
Tip compartimentare: Semidecomandat
Vechime apartament: În construcție
Tip imobil: Bloc de apartamente
Dotări: Nemobilat
Anul construcției: 2020
Tip finisaj: Semifinisat
Materiale construcție: Cărămidă
Modalitate vânzare: Credit bancar, Cash
Link-uri utile
Linkuri rapide filtrate după cele mai căutate zone și numărul de camere