Apartament cu 1 camera, 39 mp, bucatarie separata, parter inalt, Urusagului
ID: BLITZ 182546AV
Cartier: FloreştiPreț/mp: 2.025 €
Actualizat: 30.04.2026
Zona: TerraRata lunară: 397,08 €
Anunță-mă când scade prețul
Trimite oferta de preț
Nr. camere: Garsonieră
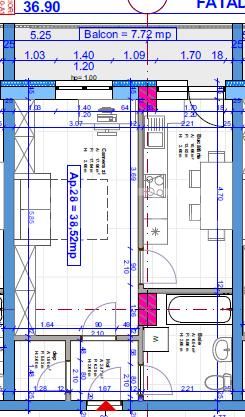
Suprafață utilă: 38.52 mp
Nr. băi: 1
Etaj: 2 /3
Locuri de parcare: 2 , Garaj
Tip compartimentare: Decomandat
Vechime apartament: În construcție
Tip imobil: Bloc de apartamente
Dotări: Nemobilat
Anul construcției: 2026
Tip finisaj: Finisat
Evoluție Indice Blitz:
Apartament cu 1 camera, 39 mp, bucatarie separata, parter inalt, Urusagului
Apartament luminos 2 camere, 39 mp, etaj intarmediar, parcare, zona Eroilor
Link-uri utile
Linkuri rapide filtrate după cele mai căutate zone și numărul de camere

