Garsoniera de vanzare, 11 mp, aproape de Iulius Mall!
Oferta accesata nu mai este disponibilă.
Poți vedea oferte din aceeași categorie sau poți contacta agentul pentru o oferta personalizată.
VEZI OFERTE SIMILARE
Oportunitate: Apartament in inima Clujului | Cladire istorica | Potențial mare
Linkuri rapide filtrate după cele mai căutate zone și numărul de camere
ID: BLITZ 25089AV
Cartier: Dambul RotundPreț/mp: 976 €
Actualizat: 27.07.2017
Zona: Calea BaciuluiRata lunară: 188,73 €
Anunță-mă când scade prețul
Trimite oferta de preț
Nr. camere: Garsonieră
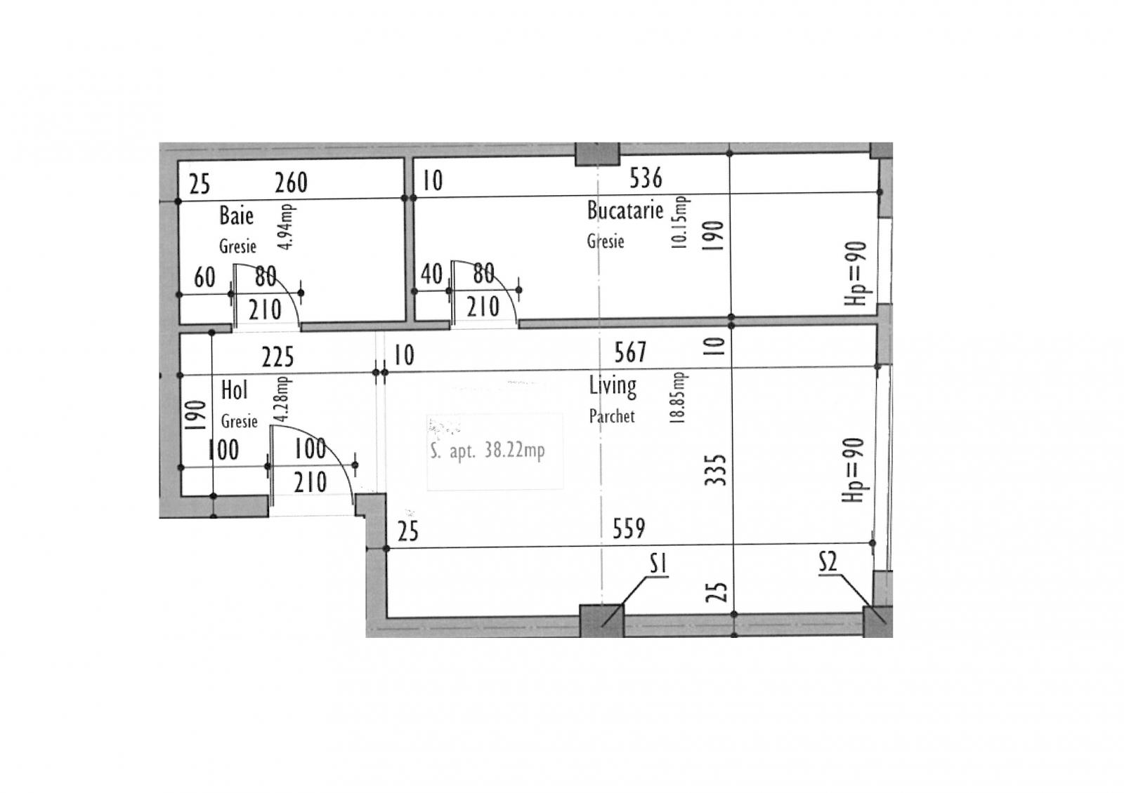
Suprafață utilă: 38 mp
Nr. băi: 1
Etaj: Parter /5
Boxă la subsol: Nu
Tip compartimentare: Semidecomandat
Vechime apartament: În construcție
Tip imobil: Bloc de apartamente
Dotări: Nemobilat
Anul construcției: 2017
Tip finisaj: Semifinisat
Materiale construcție: Cărămidă
Modalitate vânzare: În rate la constructor, Credit bancar, Cash
Link-uri utile
Linkuri rapide filtrate după cele mai căutate zone și numărul de camere