Casa tip duplex semifinisat in Feleacu cu priveliste superba
Anunță-mă când scade prețul
Trimite oferta de preț
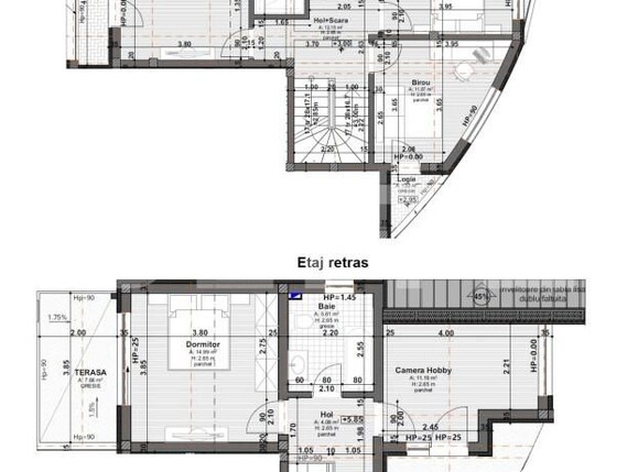
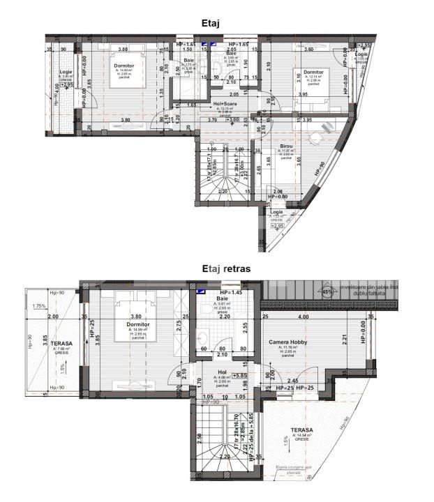
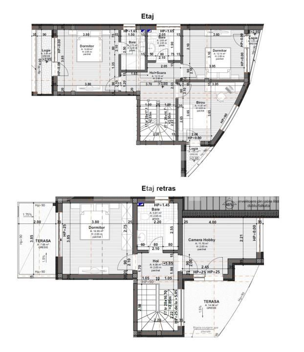
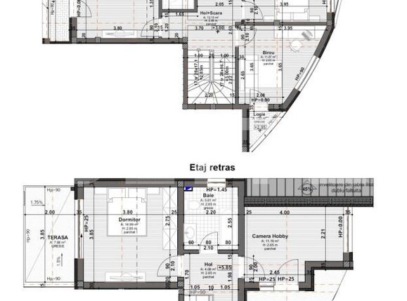
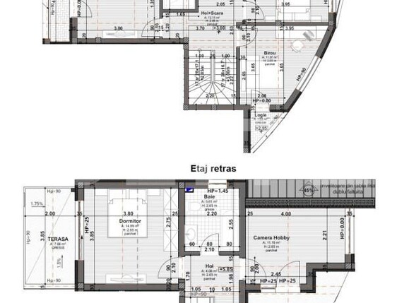
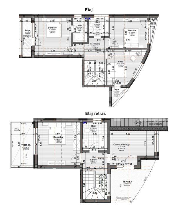
Suprafață casă: 198.1 mp
Teren: 227 mp
Număr de camere: 6
Nr. bucătării: 1
Nr. băi: 4
Nr. balcoane: 1
Locuri de parcare: 1
Vechime casă: Nouă
Dotări: Nemobilat
Tip finisaj: Semifinisat
Tip acoperiș: Tabla
An construcție: 2023
Evoluție Indice Blitz:
Duplex premium în Feleacu - Casă cu panoramă spectaculoasă asupra Clujului
Casa impresionantă 7 camere, piscină, 350 mp utili, 1900 mp teren, Mihai Viteazu
Link-uri utile
Linkuri rapide filtrate după cele mai căutate zone și numărul de camere

