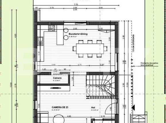
Duplex in complex privat, 5 camere, 116 mp, teren 250 mp, zona Tera
Oferta accesata nu mai este disponibilă.
Poți vedea oferte din aceeași categorie sau poți contacta agentul pentru o oferta personalizată.
VEZI OFERTE SIMILARE
Casa in Gilau-230mp utili, 500mp teren, pompa de caldura si panouri fotovoltaice

Casa individuala moderna cu panouri fotovoltaice, 600mp teren, 5 camere si garaj
Linkuri rapide filtrate după cele mai căutate zone și numărul de camere
ID: BLITZ 160160CV
Cartier: IrisPreț/mp: 1.912 €
Actualizat: 02.12.2025
Zona: Bulevardul MunciiRata lunară: 1.323,58 €
Anunță-mă când scade prețul
Trimite oferta de preț
Suprafață casă: 136 mp
Teren: 415 mp
Număr de camere: 5
Nr. bucătării: 1
Nr. băi: 3
Nr. balcoane: 1
Locuri de parcare: 3
Vechime casă: Nouă
Dotări: Nemobilat
Tip finisaj: Semifinisat
Tip acoperiș: Tabla
An construcție: 2020
Link-uri utile
Linkuri rapide filtrate după cele mai căutate zone și numărul de camere